+ Lisa oma töö      

Otsid ehitajat "Põrandatööd" valdkonnast?

Parima pakkumise ja teostaja leidmiseks lisa oma töö.

Mikrotsementimine

ID 109061

1558 vaatamist

Prindi

  • check Pakkumiste tegemine
    kuni 01.02.2025
  • check Võitja valik kuni
    08.02.2025
  • 3 Töö teostamine
    ja hinnang
Hanke lõpp: L, 1. veebruar, 2025
Maakond: Harjumaa
Muu asula: Sausti
Tööde lõpp: Kokkuleppel
Ehitusmaterjalid: Töö tellija poolt
Soovin pakkumisi: Summa kogu projektile

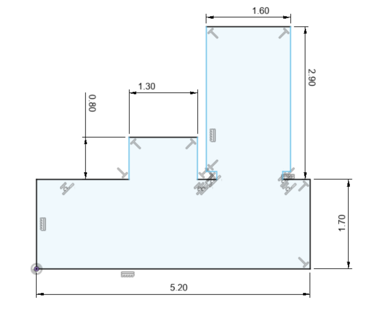
Töö sisu

Plaatide vuugivahed vaja täita, põrand katta mikrotsemendiga ja 3kihti lakki.
Kokku ca 17m2. Pildil olevad kapid eemaldatakse töö ajaks.

Pildid, video ja failid

Hanke korraldaja: eraisik ID87414

Pakkumised

Pakkumisi kokku: 8

Ettevõte Summa Käibemaks Lisatud Vestlus
Kasutaja ikoon ID85299
Pakkuja profiil Väike nool paremale
1 298€ Ei ole KMKR Ei ole KMKR 18.01.2025 Vestlus (0)
Kasutaja ikoon ID76974
Pakkuja profiil Väike nool paremale
1 745€ Ei ole KMKR Ei ole KMKR 19.01.2025 Vestlus (0)

Pakkumise kirjeldus:

Tere.

Palun mitte enne hanke võitu välja kuulutada kui ei ole kokkuleppele jõudnud. Töödele 2 aastat garantiid ja kõik tööd ja tehingud toimuvad lepingu alusel.

Parimat. M

Kasutaja ikoon ID86312
Pakkuja profiil Väike nool paremale
1 500€ KM lisandub KM lisandub 19.01.2025 Vestlus (0)
Kasutaja ikoon ID49809
Pakkuja profiil Väike nool paremale
765€ KM lisandub KM lisandub 20.01.2025 Vestlus (0)
Kasutaja ikoon ID87417
Pakkuja profiil Väike nool paremale
1 159€ Ikoon kell Ei ole KMKR Ei ole KMKR 24.01.2025 Vestlus (0)

Pakkumise kirjeldus:

Tööle 2 aastat garantiid.

Parimat

Kasutaja ikoon ID63220
Pakkuja profiil Väike nool paremale
1 100€ KM lisandub KM lisandub 25.01.2025 Vestlus (0)
Kasutaja ikoon ID87462
Pakkuja profiil Väike nool paremale
1 700€ Sisaldab KM Sisaldab KM 27.01.2025 Vestlus (0)

Pakkumise kirjeldus:

Tere
Juhul kui soovite meid valida hanke võitjaks peaks eelnevalt kokku leppima makse tingimustes
Tänud

Kasutaja ikoon ID72970
Pakkuja profiil Väike nool paremale
1 950€ Ei ole KMKR Ei ole KMKR 01.02.2025 Vestlus (0)

Küsimused hanke korraldajale

Küsimus: private ID72970   19.01.2025 00:58
Mis on mikrotsemendi tootja?

Teavita reeglite rikkumisest

Korraldaja vastus: 21.01.2025 11:12

https://www.finito.ee/product/festfloor-go-10-m²-komplekt-porandate-katmiseks/

Teavita reeglite rikkumisest

Lisa küsimus

Lisa küsimus

Minu pakkumine

Reeglid

Pakkumise kirjelduse väli on mõeldud pakkumise detailsemaks lahti kirjutamiseks. Pikema teksti mugavaks sisestamiseks klikkige kasti paremal ülaservas oleval ikoonil.
Pakkumist tehes on keelatud postitada enda kontaktandmeid (nimi, telefon, aadress jne). Me jälgime ja analüüsime pakkumisi, et vältida pettuseid ja reeglite rikkumisi.
Rikkumise puhul kasutajakonto blokeeritakse.

 

Teisi töid samas valdkonnas

Valdkonnas "Põrandatööd" on 2 aktiivset tööd

Talumaja põrandate valamine/ehitus koos küttetorustiku paigaldusega

Asukoht: Raplamaa, Purila
Aega jäänud: 16p 19h
Tehtud pakkumisi: 2

Põrandakütte paigaldus ja põrandavalu (kips või betoon)

Asukoht: Saaremaa, Muhu vald
Aega jäänud: 19h 5 min
Tehtud pakkumisi: 1

Vanemad teated:

Vaata kõiki

Sellel veebilehel kasutatakse küpsiseid. Kasutamist jätkates nõustute küpsiste kasutamisega.

Sulge
 
Minu pakkumine

Reeglid

Pakkumise kirjelduse väli on mõeldud pakkumise detailsemaks lahti kirjutamiseks. Pikema teksti mugavaks sisestamiseks klikkige kasti paremal ülaservas oleval ikoonil.
Pakkumist tehes on keelatud postitada enda kontaktandmeid (nimi, telefon, aadress jne). Me jälgime ja analüüsime pakkumisi, et vältida pettuseid ja reeglite rikkumisi.
Rikkumise puhul kasutajakonto blokeeritakse.