+ Lisa oma töö      

Otsid ehitajat "Siseviimistlustööd" valdkonnast?

Parima pakkumise ja teostaja leidmiseks lisa oma töö.

Sisetööd: aurutõkke paigaldus ja siseviimistlus

ID 108994

1496 vaatamist

Prindi

  • check Pakkumiste tegemine
    kuni 30.01.2025
  • check Võitja valik kuni
    06.02.2025
  • 3 Töö teostamine
    ja hinnang
Hanke lõpp: N, 30. jaanuar, 2025
Maakond: Harjumaa
Tööde lõpp: Kokkuleppel
Ehitusmaterjalid: Töö tellija poolt
Soovin pakkumisi: Summa kogu projektile

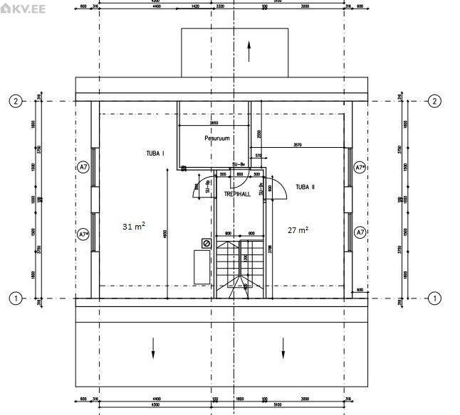
Töö sisu

Vaja paigaldada maja teise korruse ulatuses aurutõke.
Pildil kujutatud tubasid on kokku 4 + trepihall ja osa vannitoast.

Tööd:
- Kipsplaadi eemaldamine u 70 m2
- Laes oleva voodrilaua demontaaž u 80 m2
- Aurutõkkemembraani paigaldus u 200 m2
- Voodrilaua montaaž lakke
- Kipsplaadi paigaldus u 70 m2
- Kipsplaadi viimistlus

Pildid, video ja failid

Hanke korraldaja: eraisik ID78193

Pakkumised

Pakkumisi kokku: 6

Ettevõte Summa Käibemaks Lisatud Vestlus
Kasutaja ikoon ID70688
Pakkuja profiil Väike nool paremale
9 860€ KM lisandub KM lisandub 16.01.2025 Vestlus (0)

Pakkumise kirjeldus:

Tere!

Pakkumine:

Tööd:
- Kipsplaadi eemaldamine u 70 m2 10.-+km/m2 Kokku: 700.-+km
- Laes oleva voodrilaua demontaaž u 80 m2 10.-+km/m2 Kokku : 800.-+km
- Aurutõkkemembraani paigaldus u 200 m2 12,5+km/m2 Kokku 2500.-+km
- Voodrilaua montaaž lakke 12.-+km/m2 ???? Materal??? Saab kasuada ei saa, see selgub obekti nähes. See ainult töö hind ... Rohkem

Kasutaja ikoon ID75169
Pakkuja profiil Väike nool paremale
5 250€ KM lisandub KM lisandub 17.01.2025 Vestlus (0)

Pakkumise kirjeldus:

Kipsseinad arvestatud koos lõppvimistlusega

Kasutaja ikoon ID86318
Pakkuja profiil Väike nool paremale
12 000€ KM lisandub KM lisandub 17.01.2025 Vestlus (0)

Pakkumise kirjeldus:

Ettemaks kulub materjalile

Saame alustada kohe. Tööde kestus ca 10-20 päeva

Kasutaja ikoon ID65365
Pakkuja profiil Väike nool paremale
6 790€ Ei ole KMKR Ei ole KMKR 18.01.2025 Vestlus (0)

Pakkumise kirjeldus:

Pakkumine tööle,ettemaks hange tasu,tööde alustus.

Kasutaja ikoon ID87462
Pakkuja profiil Väike nool paremale
15 000€ Sisaldab KM Sisaldab KM 27.01.2025 Vestlus (0)

Pakkumise kirjeldus:

Tere
Juhul kui soovite meid valida hanke võitjaks peaks eelnevalt kokku leppima makse tingimustes
Tänud

Kasutaja ikoon ID79882
Pakkuja profiil Väike nool paremale
9 000€ Ei ole KMKR Ei ole KMKR 30.01.2025 Vestlus (0)

Pakkumise kirjeldus:

Pakkumine Teie soovide ja kirjelduse järgi.Lisatööd eraldi tasustatavad.Garantii 5 aastat,ettemaksu ei soovi,km.ei lisandu.Töö võimalus teostada koheselt 2-3 nädalat 3pika kogemusega ehitaja poolt(vaadake meie hinnanguid).Pakkumine sisaldab ka ehitusjäätmete utiliseerimist,kinni katmisi jms.Lisaküsimused Vestluses.Parimat

Küsimused hanke korraldajale

Küsimus: private ID64032   17.01.2025 05:25
Tere,

Mis on hetkel kipsplaadi ja voodrilaua taga?
Kas kipsplaat on seinas või laes mis vaja eemaldada?
Kas 50m2 on juba lahtist osa?

Parimate soovidega,
Kristjan

Teavita reeglite rikkumisest

Korraldaja vastus:
Hanke korraldaja ei ole küsimusele veel vastanud

Küsimus: private ID72055   17.01.2025 09:14
Tere!
Kuskandis harjumaal asub?
Millisele karkassile on paigaldatud kipsplaat/ voodrilaud?
Kas uus voodrilaud tuleb värvituna või vajab ka viimistlust?
Tervitades,
A.

Teavita reeglite rikkumisest

Korraldaja vastus:
Hanke korraldaja ei ole küsimusele veel vastanud

Lisa küsimus

Lisa küsimus

Minu pakkumine

Reeglid

Pakkumise kirjelduse väli on mõeldud pakkumise detailsemaks lahti kirjutamiseks. Pikema teksti mugavaks sisestamiseks klikkige kasti paremal ülaservas oleval ikoonil.
Pakkumist tehes on keelatud postitada enda kontaktandmeid (nimi, telefon, aadress jne). Me jälgime ja analüüsime pakkumisi, et vältida pettuseid ja reeglite rikkumisi.
Rikkumise puhul kasutajakonto blokeeritakse.

 

Teisi töid samas valdkonnas

Valdkonnas "Siseviimistlustööd" on 24 aktiivset tööd

Korteri remont

Asukoht: Harjumaa, Muraste
Aega jäänud: 2p 5h
Tehtud pakkumisi: 15

Seinte pahteldus ja värvimine

Asukoht: Harjumaa, Türisalu
Aega jäänud: 3p 5h
Tehtud pakkumisi: 7

Vanemad teated:

Vaata kõiki

Sellel veebilehel kasutatakse küpsiseid. Kasutamist jätkates nõustute küpsiste kasutamisega.

Sulge
 
Minu pakkumine

Reeglid

Pakkumise kirjelduse väli on mõeldud pakkumise detailsemaks lahti kirjutamiseks. Pikema teksti mugavaks sisestamiseks klikkige kasti paremal ülaservas oleval ikoonil.
Pakkumist tehes on keelatud postitada enda kontaktandmeid (nimi, telefon, aadress jne). Me jälgime ja analüüsime pakkumisi, et vältida pettuseid ja reeglite rikkumisi.
Rikkumise puhul kasutajakonto blokeeritakse.