+ Lisa oma töö      

Otsid ehitajat "Üldehitus" valdkonnast?

Parima pakkumise ja teostaja leidmiseks lisa oma töö.

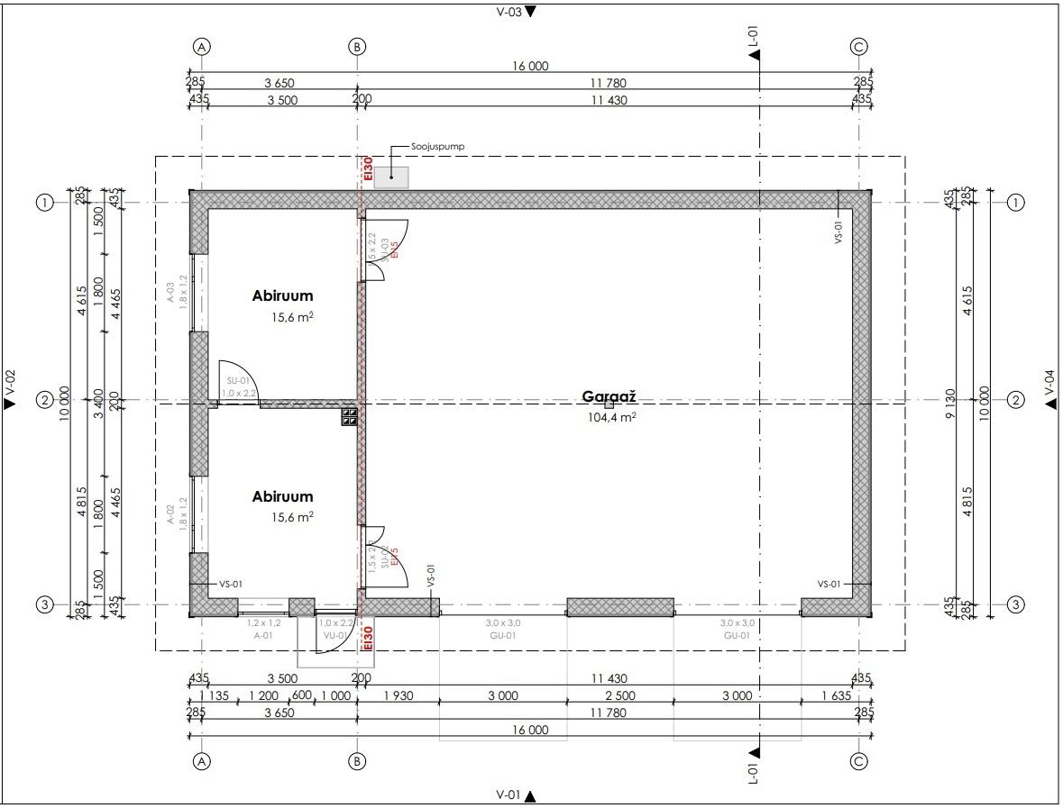
Garaazi ehitus.

ID 108951

2253 vaatamist

Prindi

  • check Pakkumiste tegemine
    kuni 14.02.2025
  • check Võitja valik kuni
    21.02.2025
  • 3 Töö teostamine
    ja hinnang
Hanke lõpp: R, 14. veebruar, 2025
Maakond: Läänemaa
Linn: Haapsalu
Tööde lõpp: Kokkuleppel
Ehitusmaterjalid: Töö tegija poolt
Soovin pakkumisi: Summa kogu projektile

Töö sisu

Pakun Haapsallu ehitada 160 m2 suurune soe garaaz ( ilma kanalita ) lepinguga
,, võtmed kätte ,,

Kinnistul on elektriliitumine tehtud ja vesi ja kanalisatsioon toodud krundi piirile.
Hankes tuleks sisaldada ka trenaasi ja elektritööd krundil ning garaazi põrandakütte ōhk-vesi pumba paigaldus.
Samas sisetöödel garaazipõrand plaatida ja seinad katta küprokiga, pahteldada ja värvida.
Krunt on 100% tootmismaa ja väljastatud ka ehitusluba tootmis büroo ehitamiseks.

Pildid, video ja failid

Hanke korraldaja: ettevõte ID87365

Pakkumised

Pakkumisi kokku: 3

Ettevõte Summa Käibemaks Lisatud Vestlus
Kasutaja ikoon ID79232
Pakkuja profiil Väike nool paremale
224 000€ KM lisandub KM lisandub 04.02.2025 Vestlus (0)
Kasutaja ikoon ID73664
Pakkuja profiil Väike nool paremale
182 000€ KM lisandub KM lisandub 10.02.2025 Vestlus (0)

Pakkumise kirjeldus:

Tere
Pakkumine sisaldab nn võtmed kätte lahendust.
Maksetingimused lepime eraldi kokku.Ennem töödega alustamist sõlmime kahepoolse lepingu.
Lugupidamisega.

Kasutaja ikoon ID50594
Pakkuja profiil Väike nool paremale
240 800€ KM lisandub KM lisandub 13.02.2025 Vestlus (0)

Pakkumise kirjeldus:

Tere,

Hetkel hind indikatiivne. Palju asju on vaja detailselt läbi arutada.

Eelarvestuses saame koostada detailse pakkumise, kui leidub veel dokumente. Seletuskiri, kaevetööde ulatused liitumistest jne.

Palun eelnevalt mitte võitjaks valida, ei soovi tühja tasuda 1000 €.

Lgp. Taivo

Küsimused hanke korraldajale

Küsimus: private ID73664   06.02.2025 17:40
Tere
Millist vineeri plaanite katuslael kasutada .

Teavita reeglite rikkumisest

Korraldaja vastus: 07.02.2025 15:34

Seestpoolt lähevad lakke 10mm paksused kasevineerist tahvlid, mis moodustavad aluspinna katuse soojustusele.

Teavita reeglite rikkumisest

Lisa küsimus

Lisa küsimus

Minu pakkumine

Reeglid

Pakkumise kirjelduse väli on mõeldud pakkumise detailsemaks lahti kirjutamiseks. Pikema teksti mugavaks sisestamiseks klikkige kasti paremal ülaservas oleval ikoonil.
Pakkumist tehes on keelatud postitada enda kontaktandmeid (nimi, telefon, aadress jne). Me jälgime ja analüüsime pakkumisi, et vältida pettuseid ja reeglite rikkumisi.
Rikkumise puhul kasutajakonto blokeeritakse.

 

Teisi töid samas valdkonnas

Valdkonnas "Üldehitus" on 27 aktiivset tööd

Terassi õlitamine, 13,7 ruutu

Asukoht: Harjumaa, Saue
Aega jäänud: 5p 18h
Tehtud pakkumisi: 4

Eramaja ehitus

Asukoht: Harjumaa, Suurupi
Aega jäänud: 4p 18h
Tehtud pakkumisi: 4

Vanemad teated:

Vaata kõiki

Sellel veebilehel kasutatakse küpsiseid. Kasutamist jätkates nõustute küpsiste kasutamisega.

Sulge
 
Minu pakkumine

Reeglid

Pakkumise kirjelduse väli on mõeldud pakkumise detailsemaks lahti kirjutamiseks. Pikema teksti mugavaks sisestamiseks klikkige kasti paremal ülaservas oleval ikoonil.
Pakkumist tehes on keelatud postitada enda kontaktandmeid (nimi, telefon, aadress jne). Me jälgime ja analüüsime pakkumisi, et vältida pettuseid ja reeglite rikkumisi.
Rikkumise puhul kasutajakonto blokeeritakse.