+ Lisa oma töö      

Otsid ehitajat "Vundamenditööd" valdkonnast?

Parima pakkumise ja teostaja leidmiseks lisa oma töö.

Hange on lõppenud!

Võitjaks osutus kasutaja ID 50329

Plaatvundament elumajale ja abihoonele

ID 108272

3029 vaatamist

Prindi

  • check Pakkumiste tegemine
    kuni 24.01.2025
  • check Võitja valik kuni
    31.01.2025
  • 3 Töö teostamine
    ja hinnang
Hanke lõpp: R, 24. jaanuar, 2025
Maakond: Raplamaa
Muu asula: Aespa
Tööde lõpp: Kokkuleppel
Ehitusmaterjalid: Töö tegija poolt
Soovin pakkumisi: Summa kogu projektile

Töö sisu

Plaatvundamendi ehitus nii Elumajale kui ka Abihoonele.
Plats on hetkel puhas ja suhteliselt tasane. Kaevetööde tagajärjel tekkinud mulda ära vedada pole vaja, läheb krundil madalamatesse kohtadesse tasandamiseks.
Lisaks:
a) vundamendi aluse vee ja kanalisatsiooni süsteemi ehitus (infoks, et on olemas ka kanalisatsiooni projekt, kinnitatud/kooskõlastatud Kohila vallaga)
b)ainult Elumajahoonele on vaja ka küttetorude paigaldus ehk põrandakütte.

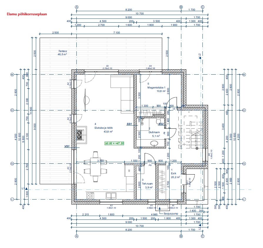
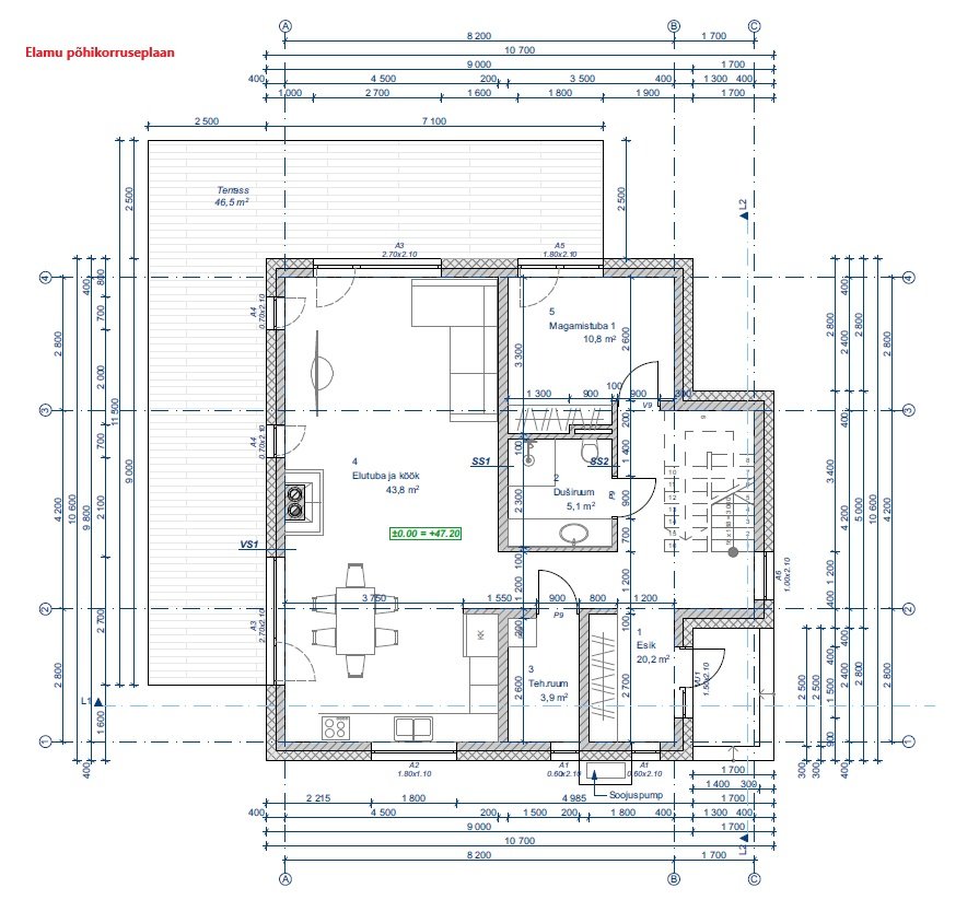
Muu spetsiifilisem/tehnilisem osa on juba projekti piltidel manuses, kus ilusasti olemas abihoonelõige ja peahoonelõige.

Pildid, video ja failid

Hanke korraldaja: eraisik ID85733

Pakkumised

Pakkumisi kokku: 11

Ettevõte Summa Käibemaks Lisatud Vestlus
Kasutaja ikoon ID50329
Pakkuja profiil Väike nool paremale
22 600€ KM lisandub KM lisandub 27.12.2024 Vestlus (14)
Kasutaja ikoon ID86721
Pakkuja profiil Väike nool paremale
33 270€ Ei ole KMKR Ei ole KMKR 28.12.2024 Vestlus (0)

Pakkumise kirjeldus:

Pakkumine Töö koos materjaliga.
Kaevetööd
Tagasitäide kuni 30 cm
Aluseloodimine Liivaga
EPS paigaldus
Armeerimine
Vee ja kanalisatsioonitööd
Põrandaküttetorustik elumaja
Betoonivalamine

Kasutaja ikoon ID19212
Pakkuja profiil Väike nool paremale
25 184€ KM lisandub KM lisandub 07.01.2025 Vestlus (0)

Pakkumise kirjeldus:

'Hind sisaldab:
Mullla tõõd
Hoone maha märkimine
Hoone aluse täitmine kruusa,killu,liivaga
Hoone alused komunikatsioonid
L ploki,penoplasti paigaldus
Armeering
Põranda kütte toru majja
Betoneerimine
Komunikatsioonid hoonest liitumispunkti 95.-/jm

Kasutaja ikoon ID72008
Pakkuja profiil Väike nool paremale
23 500€ KM lisandub KM lisandub 18.01.2025 Vestlus (0)

Pakkumise kirjeldus:

Tere.

Tegeleme aastaringselt ainult plaatvundamentide ehitusega.

Pakkumine sisaldab.

L-plokk ja põrandasoojusts eps100. Vastavalt projektile.
Sisekanal 110mm ja 75mm
Tarbevesi alupex 20mm
Kile betooni alla ja vajadusel ka radoonikile.
Armeerimine-võrk 8mm+rangid ja pikirauad 12mm. Kandvad seinad ja äärering.
Trapid.lisakõrid .
Põrandakà ... Rohkem

Kasutaja ikoon ID56487
Pakkuja profiil Väike nool paremale
32 000€ Sisaldab KM Sisaldab KM 20.01.2025 Vestlus (0)
Kasutaja ikoon ID34075
Pakkuja profiil Väike nool paremale
32 870€ KM lisandub KM lisandub 23.01.2025 Vestlus (0)

Pakkumise kirjeldus:

Kinnistupealne vesi ja kanalisatsioon, kahe hoone vaheline el kaabel kõris, kahe hoone plaatvundamendid koos vert lisasoojustuse ja horisontaalsete perimeetri soojustustega

Kasutaja ikoon ID37350
Pakkuja profiil Väike nool paremale
26 500€ Ei ole KMKR Ei ole KMKR 24.01.2025 Vestlus (0)
Kasutaja ikoon ID72026
Pakkuja profiil Väike nool paremale
27 800€ KM lisandub KM lisandub 24.01.2025 Vestlus (0)
Kasutaja ikoon ID8633
Pakkuja profiil Väike nool paremale
25 500€ KM lisandub KM lisandub 24.01.2025 Vestlus (0)
Kasutaja ikoon ID54436
Pakkuja profiil Väike nool paremale
23 000€ KM lisandub KM lisandub 24.01.2025 Vestlus (0)

Pakkumise kirjeldus:

Hind hankes kirjeldatud tööle

Kasutaja ikoon ID87079
Pakkuja profiil Väike nool paremale
22 000€ KM lisandub KM lisandub 24.01.2025 Vestlus (0)

Küsimused hanke korraldajale

Küsimus: private ID86514   26.12.2024 10:30
Tere,
täpse hinnapakkumise tegemiseks oleks vajalik ka asendiplaan ja hoone korruseplaan.
Mis on antud asukohas kasvupinnase kihi paksus?
Kuidas on ligipääs transpordiga?

Teavita reeglite rikkumisest

Korraldaja vastus: 27.12.2024 18:08

1. Mis on antud asukohas kasvupinnase kihi paksus? --- Ei oska vastata, kas see peaks kusagil geodeetilistes andmetes kajastuma? Jään hetkel vastuse võlgu.
2. Kuidas on ligipääs transpordiga? ---- Väga hea, paar nädalat tagasi tehti suure veokiga ja lint-ekskavaatoriga vanast vundamendist plats puhtaks, vajumist praktiliselt polnud, pinnas vastupidav/hea.

Pinnase osas infoks veel, et seal kus vana vundament oli eks sinna samasse kohta asemele läheb ka uus vundament, et siis vana vundamendi asumise kohal on palju liiva (kogu sisu liiva täis), mulla kaevamist tuleb arvatavasti vähe (üks hoone oli 60m2, teine 20m2)

3. Asendiplaanil on liiga palju kontaktandmeid jne., mis infot te sealt täpsemalt tahate, Siis oskan piltidena sealt täpsemalt infot välja kopeerida!

Korruseplaani osas, kas piisab põhikorruse plaanist (maja tuleb kahekorruseline)?

Teavita reeglite rikkumisest

Lisa küsimus

Lisa küsimus

Minu pakkumine

€

Reeglid

Pakkumise kirjelduse väli on mõeldud pakkumise detailsemaks lahti kirjutamiseks. Pikema teksti mugavaks sisestamiseks klikkige kasti paremal ülaservas oleval ikoonil.
Pakkumist tehes on keelatud postitada enda kontaktandmeid (nimi, telefon, aadress jne). Me jälgime ja analüüsime pakkumisi, et vältida pettuseid ja reeglite rikkumisi.
Rikkumise puhul kasutajakonto blokeeritakse.

 

Teisi töid samas valdkonnas

Valdkonnas "Vundamenditööd" on 5 aktiivset tööd

Vana kivivundamendi / sokli parandus

Asukoht: Pärnumaa
Aega jäänud: 25 min
Tehtud pakkumisi: 1

no-img Pilt puudub

Plaatvundamendi ehitus

Asukoht: Harjumaa
Aega jäänud: 9p
Tehtud pakkumisi: 1

Vanemad teated:

Vaata kõiki

Sellel veebilehel kasutatakse küpsiseid. Kasutamist jätkates nõustute küpsiste kasutamisega.

Sulge
 
Minu pakkumine
€

Reeglid

Pakkumise kirjelduse väli on mõeldud pakkumise detailsemaks lahti kirjutamiseks. Pikema teksti mugavaks sisestamiseks klikkige kasti paremal ülaservas oleval ikoonil.
Pakkumist tehes on keelatud postitada enda kontaktandmeid (nimi, telefon, aadress jne). Me jälgime ja analüüsime pakkumisi, et vältida pettuseid ja reeglite rikkumisi.
Rikkumise puhul kasutajakonto blokeeritakse.