+ Lisa oma töö      

Otsid ehitajat "Ehituse peatöövõtt" valdkonnast?

Parima pakkumise ja teostaja leidmiseks lisa oma töö.

Ehitus

ID 108124

1375 vaatamist

Prindi

  • check Pakkumiste tegemine
    kuni 20.12.2024
  • check Võitja valik kuni
    27.12.2024
  • 3 Töö teostamine
    ja hinnang
Hanke lõpp: R, 20. detsember, 2024
Maakond: Harjumaa
Muu asula: Anija
Tööde lõpp: Kokkuleppel
Ehitusmaterjalid: Töö tellija poolt
Soovin pakkumisi: Summa kogu projektile

Töö sisu

Montazh Nesushchikh sten zdaniya 200mm +vata 50+plenka+vetrozashchita+paraizolyatsya obreshotka+vagonka Krovelnyye raboty. Ustanovka Karkas fermy, plenka, obreshtka, vetrovoy yashchik, ustanovka zhest' vodoslivov na kryshu. Montazh Nesushchikh peregorodok zadaniya 200mm +vata+giprok 2 sloya po 12.5 Ustaovka vsekh okon utepleniya otkosov Elektricheskiye raboty razvodka po karkasu v komnaty, podgotovka k ekspupatsiiya Voda i kanalizatsiya provodk trub v sanuzly i kukhnyu i podgotovka otopitel'noy sistemy k eksplutatsii.
Монтаж Несущих стен здания 200мм +вата 50+пленка+ветрозащита+параизоляця
обрешётка+вагонка
Кровелные работы.
Установка готовой фермы, пленка, обрештка, ветровой ящик, установка жесть водосливов на крышу.
Монтаж Несущих перегородок задания 200мм +вата+гипрок 2 слоя по 12.5
Устаовка всех окон утепления откосов
Электрические работы разводка по каркасу в комнаты, подготовка к экспупациия
Вода и канализация проводк труб в санузлы и кухню и подготовка отопительной системы к эксплутации
Hoone kandeseinte paigaldus 200mm + 50 vill + kile + tuulekaitse + aurutõke
laing + vooder
Katusetööd.
Valmis sõrestiku, kile, laotuse, tuulekasti paigaldus, katusele plekk-rennide paigaldus.
Ülesande kandvate vaheseinte paigaldus 200 mm + vill + kipsplaat 2 kihti 12,5
Kõikide akende paigaldus, nõlvade soojustamine
Elektritööde juhtmestik mööda karkassi ruumidesse, ettevalmistus tööks
Vannitubadesse ja kööki vee- ja kanalisatsioonijuhtmestik ning küttesüsteemi ettevalmistamine tööks

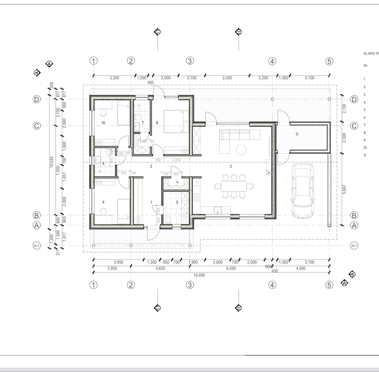
Pildid, video ja failid

Hanke korraldaja: ettevõte ID86491

Pakkumised

Pakkumisi kokku: 0

Küsimused hanke korraldajale

Küsimus: private ID86379   18.12.2024 12:39
Maja mõõdud, projekt on?

Teavita reeglite rikkumisest

Korraldaja vastus: 18.12.2024 13:16

Maja mõõdud 110 rm.karkass,proje

Teavita reeglite rikkumisest

Küsimus: private ID52153   19.12.2024 07:12
Здравствуйте, я правильно понимаю, что у вас коробка стоит без крыши и необходимо достроить конструкцию? Нужно ли делать внутреннюю отделку?
Tervitades Alfred

Teavita reeglite rikkumisest

Korraldaja vastus: 19.12.2024 09:12

Есть только фундамент, плита шведская

Teavita reeglite rikkumisest

Küsimus: private ID52153   19.12.2024 09:16
Ясно, значит вам нужен кто-то кто делает всё на ключ? Есть не малыи опыт могу взяться.
Tervitades Alfred

Teavita reeglite rikkumisest

Korraldaja vastus: 19.12.2024 10:08

Какая цена?

Teavita reeglite rikkumisest

Lisa küsimus

Lisa küsimus

Minu pakkumine

Reeglid

Pakkumise kirjelduse väli on mõeldud pakkumise detailsemaks lahti kirjutamiseks. Pikema teksti mugavaks sisestamiseks klikkige kasti paremal ülaservas oleval ikoonil.
Pakkumist tehes on keelatud postitada enda kontaktandmeid (nimi, telefon, aadress jne). Me jälgime ja analüüsime pakkumisi, et vältida pettuseid ja reeglite rikkumisi.
Rikkumise puhul kasutajakonto blokeeritakse.

 

Vanemad teated:

Vaata kõiki

Sellel veebilehel kasutatakse küpsiseid. Kasutamist jätkates nõustute küpsiste kasutamisega.

Sulge
 
Minu pakkumine

Reeglid

Pakkumise kirjelduse väli on mõeldud pakkumise detailsemaks lahti kirjutamiseks. Pikema teksti mugavaks sisestamiseks klikkige kasti paremal ülaservas oleval ikoonil.
Pakkumist tehes on keelatud postitada enda kontaktandmeid (nimi, telefon, aadress jne). Me jälgime ja analüüsime pakkumisi, et vältida pettuseid ja reeglite rikkumisi.
Rikkumise puhul kasutajakonto blokeeritakse.