+ Lisa oma töö      

Otsid ehitajat "Betoonitööd" valdkonnast?

Parima pakkumise ja teostaja leidmiseks lisa oma töö.

Hange on lõppenud!

Võitjaks osutus kasutaja ID 67766

Betoonivalu

ID 108037

1522 vaatamist

Prindi

  • check Pakkumiste tegemine
    kuni 21.12.2024
  • check Võitja valik kuni
    28.12.2024
  • 3 Töö teostamine
    ja hinnang
Hanke lõpp: L, 21. detsember, 2024
Maakond: Tartumaa
Tööde lõpp: Kokkuleppel
Ehitusmaterjalid: Töö tegija poolt
Soovin pakkumisi: Summa kogu projektile

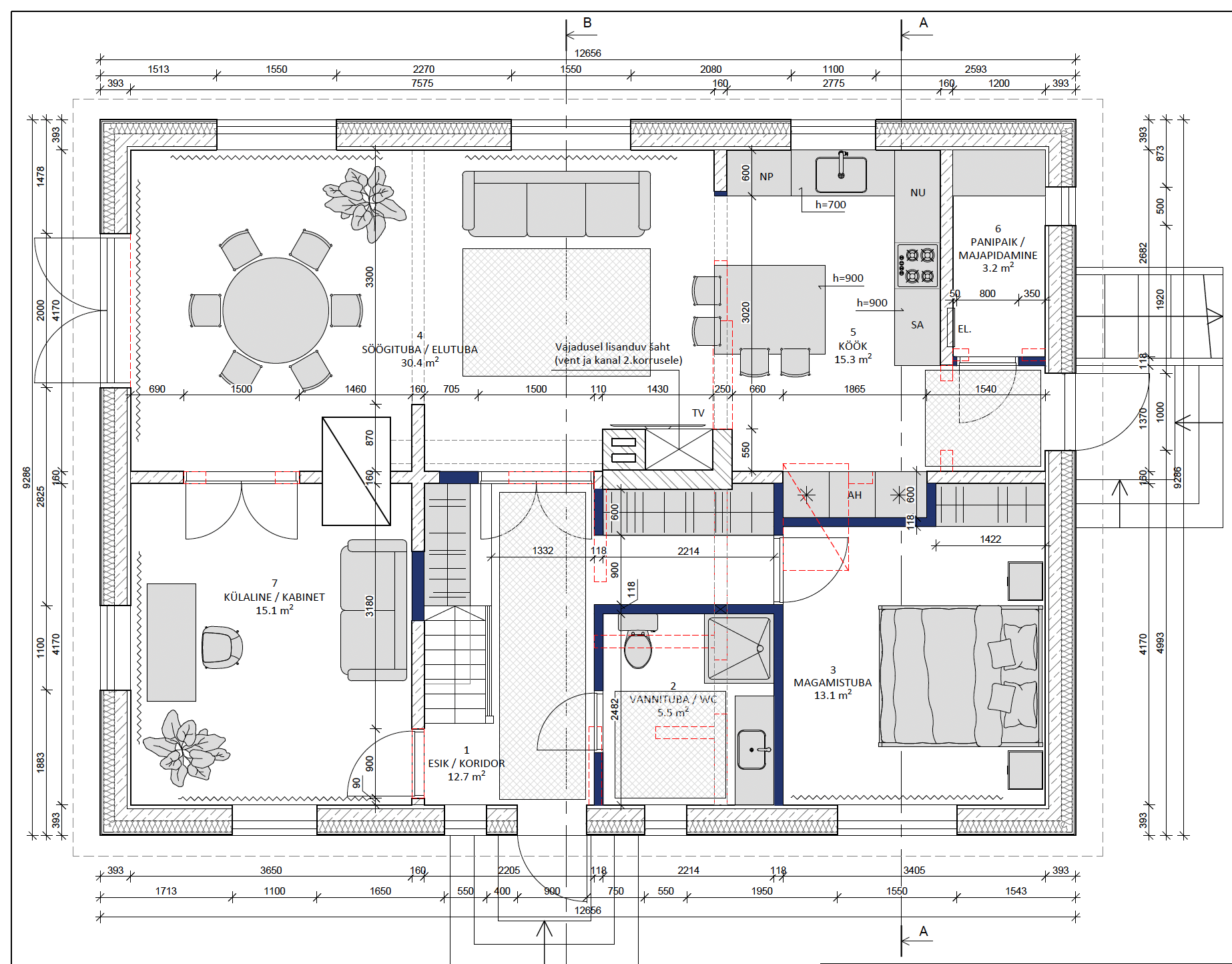
Töö sisu

Eramaja I korruse põranda betoonivalu. Pind 100 ruutmeetrit, 100mm kiht.

Soojustuse, põrandakütte torustiku ja kanalisatsioonitorud paigaldab eraldi torumees.

Tööde teostamise aeg 2025 märts-aprill.

Pildid, video ja failid

Hanke korraldaja: eraisik ID82302

Pakkumised

Pakkumisi kokku: 5

Ettevõte Summa Käibemaks Lisatud Vestlus
Kasutaja ikoon ID86924
Pakkuja profiil Väike nool paremale
5 000€ Sisaldab KM Sisaldab KM 14.12.2024 Vestlus (0)
Kasutaja ikoon ID85882
Pakkuja profiil Väike nool paremale
3 400€ Sisaldab KM Sisaldab KM 14.12.2024 Vestlus (0)

Pakkumise kirjeldus:

Tere, meil on pikaajaline kogemus.
Hind sisaldab armeerimist, kiletamist, betoonivalu, ja silutamist.

Kasutaja ikoon ID73796
Pakkuja profiil Väike nool paremale
2 900€ KM lisandub KM lisandub 15.12.2024 Vestlus (0)

Pakkumise kirjeldus:

Tere. Hinnas betoon + töö

Kasutaja ikoon ID27879
Pakkuja profiil Väike nool paremale
2 605€ KM lisandub KM lisandub 15.12.2024 Vestlus (0)

Pakkumise kirjeldus:

Tere
Hind sisaldab
valamist,lihvimist ja betooni

Kasutaja ikoon ID67766
Pakkuja profiil Väike nool paremale
2 885€ Ei ole KMKR Ei ole KMKR 16.12.2024 Vestlus (0)

Pakkumise kirjeldus:

Hind sisaldab põranda valamist betooniga 25/30 s4 ja 10,5 m3,koos kopteri pinnaga. Hind võib muutuda seoses betooni hinna muutusega,Parimat sovides

Küsimused hanke korraldajale

Hanke korraldajale ei ole veel küsimusi esitatud.

Lisa küsimus

Lisa küsimus

Minu pakkumine

Reeglid

Pakkumise kirjelduse väli on mõeldud pakkumise detailsemaks lahti kirjutamiseks. Pikema teksti mugavaks sisestamiseks klikkige kasti paremal ülaservas oleval ikoonil.
Pakkumist tehes on keelatud postitada enda kontaktandmeid (nimi, telefon, aadress jne). Me jälgime ja analüüsime pakkumisi, et vältida pettuseid ja reeglite rikkumisi.
Rikkumise puhul kasutajakonto blokeeritakse.

 

Teisi töid samas valdkonnas

Valdkonnas "Betoonitööd" on 5 aktiivset tööd

Betoonist platsi valamine väljas.

Asukoht: Harjumaa, Luige
Aega jäänud: 20h 7 min
Tehtud pakkumisi: 4

Betoonpõranda valu

Asukoht: Harjumaa, Jõelähtme
Aega jäänud: 2p 20h
Tehtud pakkumisi: 3

Vanemad teated:

Vaata kõiki

Sellel veebilehel kasutatakse küpsiseid. Kasutamist jätkates nõustute küpsiste kasutamisega.

Sulge
 
Minu pakkumine

Reeglid

Pakkumise kirjelduse väli on mõeldud pakkumise detailsemaks lahti kirjutamiseks. Pikema teksti mugavaks sisestamiseks klikkige kasti paremal ülaservas oleval ikoonil.
Pakkumist tehes on keelatud postitada enda kontaktandmeid (nimi, telefon, aadress jne). Me jälgime ja analüüsime pakkumisi, et vältida pettuseid ja reeglite rikkumisi.
Rikkumise puhul kasutajakonto blokeeritakse.