+ Lisa oma töö      

Otsid ehitajat "Üldehitus" valdkonnast?

Parima pakkumise ja teostaja leidmiseks lisa oma töö.

Hange on lõppenud!

Võitjaks osutus kasutaja ID 18214

Korraldaja hinnang tehtud tööle

5.0
28.12.2024
Töökiirus: 12345
Kvaliteet: 12345
Hind: 12345

Jäime igati rahule - tulemus on kvaliteetne, töö oli kiire, materjalide osas ei ole nurki lõigatud, kokkulepped täpsed, suhtlus ladus ja Joel jagas oma kogemuse pealt soovitusi, kuidas saada veel parem helikindlus. Kuna vahesein ehitati muidu sisustatud korterisse pööras Joel erilist tähelepanu ümbruse ja tööruumi puhtusele. Täitsa tõenäoline, et teeme kunagi tulevikus veel koostööd kui vaja midagi suuremat ehitada. - Janno N.

Vaheseina ehitus

ID 107417

1859 vaatamist

Prindi

  • check Pakkumiste tegemine
    kuni 03.12.2024
  • check Võitja valik kuni
    03.12.2024
  • 3 Töö teostamine
    ja hinnang
Hanke lõpp: T, 3. detsember, 2024
Maakond: Harjumaa
Linn: Tallinn
Tööde lõpp: Kokkuleppel
Ehitusmaterjalid: Töö tegija poolt
Soovin pakkumisi: Summa kogu projektile

Töö sisu

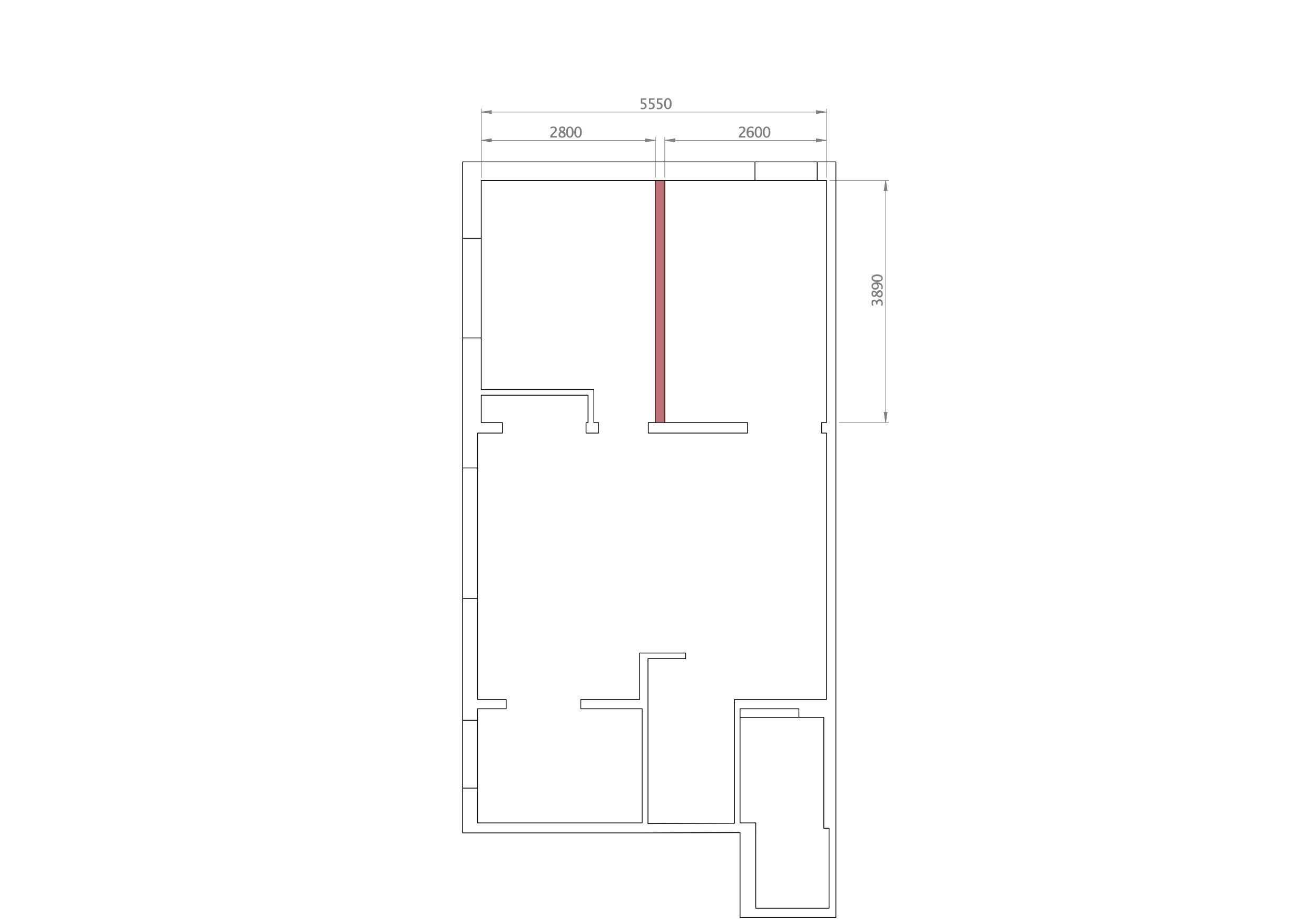
Otsime ehitajat kergseinale mis jagaks toa kaheks.
-Seina mõõtmed: 3,9 m lai ja 3,2 m kõrge
-Konstruktsioon:
Puit või metallkarkass
Mõlemale poole 2 kihti kipsplaati, üks kihtidest erikõva
Karkassi vahele paigaldada heliisolatsioonvill
Sein on joonisel tähistatud punasega.
Sein siduda ära olemasolevate seintega, olemasolevaid seinu katab kipsplaat.
-Asukoht: Põhja-Tallinn, puitmaja, 2. korrus.
-Viimistlus: Pahteldamise ja värvimise teostab tellija ise
-Tööde teostamise periood: Jaanuar 2025, palume täpsustada hinnangulist ajakulu

Pildid, video ja failid

Hanke korraldaja: eraisik ID86673

Pakkumised

Pakkumisi kokku: 15

Ettevõte Summa Käibemaks Lisatud Vestlus
Kasutaja ikoon ID49185
Pakkuja profiil Väike nool paremale
2 000€ Sisaldab KM Sisaldab KM 26.11.2024 Vestlus (0)

Pakkumise kirjeldus:

Tere.
Ettemaks palun materjali ostuks,transpordiks.
Ajakulu 2- 3 päeva.
Kohe saaksime ära teha.
Lgp. Viljar

Kasutaja ikoon ID85299
Pakkuja profiil Väike nool paremale
1 120€ Ei ole KMKR Ei ole KMKR 26.11.2024 Vestlus (0)

Pakkumise kirjeldus:

Tööetapid ja hinnakiri
Karkassi paigaldus (puit või metall):

3,9 m x 3,2 m = 12,48 m²
Karkassi ehitamine ja kinnitamine olemasolevate seintega: ~20 €/m²
Hind: ~250 €
Heliisolatsioonvilla paigaldamine:

Pindala: 12,48 m²
Villa paigaldus: ~10 €/m²
Hind: ~125 €
Kahekordse kipsplaadi paigaldus (üks kiht erikõva):

Mõlemale poole s ... Rohkem

Kasutaja ikoon ID73705
Pakkuja profiil Väike nool paremale
1 175€ Sisaldab KM Sisaldab KM 27.11.2024 Vestlus (0)
Kasutaja ikoon ID72055
Pakkuja profiil Väike nool paremale
1 020€ KM lisandub KM lisandub 27.11.2024 Vestlus (0)

Pakkumise kirjeldus:

Tere!
Pakkumine hankes kirjeldatud metallkarkassseina ehitusele. Hinnas materjalid, transport, jäätmete utiliseerimine, hange.ee teenustasu. Tööaeg 1p.
Lugupidamisega,
A.

Kasutaja ikoon ID86608
Pakkuja profiil Väike nool paremale
1 450€ Sisaldab KM Sisaldab KM 27.11.2024 Vestlus (0)

Pakkumise kirjeldus:

Tere

Pakkumine sisaldab:

Objektile materjali tarnet

Metallkarkassi ehitust, villa paigaldust

2 kihti kipsplaati , millest 1 kiht erikõva kipsplaat mõlemale poole

Koristust ja tekkinud jäätmete utiliseerimist


Töö võtab ajaliselt 1-2 päeva

Kasutaja ikoon ID50594
Pakkuja profiil Väike nool paremale
2 480€ KM lisandub KM lisandub 27.11.2024 Vestlus (0)

Pakkumise kirjeldus:

Tere,

Pakkumine vastavalt hanke kirjeldusele.

Tööde kestvus 2 päeva.

Lgp. Taivo

Kasutaja ikoon ID77473
Pakkuja profiil Väike nool paremale
1 200€ Ei ole KMKR Ei ole KMKR 28.11.2024 Vestlus (1)

Pakkumise kirjeldus:

sisaldab

Kasutaja ikoon ID31957
Pakkuja profiil Väike nool paremale
800€ KM lisandub KM lisandub 29.11.2024 Vestlus (0)

Pakkumise kirjeldus:

Tere,

Pakkumine vastavalt hankes küsitule.
Võimalid tööde teostamise kuupäevad palume eelnevalt kokkuleppida.

Parimate soovidega

Kasutaja ikoon ID86750
Pakkuja profiil Väike nool paremale
1 205€ KM lisandub KM lisandub 30.11.2024 Vestlus (9)

Pakkumise kirjeldus:

Tere!
Hind sisaldab materjali transporti, käiguteede katmist, mööbli katmist,vaheseina ehitust, ehitusjärgset koristust. Objektile jääb ka vaja minev pahtel ja krunt tellijale, mis on hinna sees.
Tööaeg 1 päev, vajadusel ka nädala vahetusel, vastavalt tellija soovile.
Lugupidamisega

Kasutaja ikoon ID77006
Pakkuja profiil Väike nool paremale
600€ Sisaldab KM Sisaldab KM 30.11.2024 Vestlus (0)

Pakkumise kirjeldus:

Tere, pakkumine kehtib ainult tööle.

Kasutaja ikoon ID18214
Pakkuja profiil Väike nool paremale
1 570€ Sisaldab KM Sisaldab KM 30.11.2024 Vestlus (4)

Pakkumise kirjeldus:

Tere.
Teen pakkumise.
Kui soovite materjali ise tuua,
siis hind 750.-
Kui meie poolt,siis soovin 50% kogu summast kohe saada,kui materjalid objektil.
Lugupidamisega
Joel.

Kasutaja ikoon ID10919
Pakkuja profiil Väike nool paremale
1 200€ Sisaldab KM Sisaldab KM 01.12.2024 Vestlus (0)

Pakkumise kirjeldus:

tere. Pakkumine tehtud hankes kirjeldatud tööle koos materjaliga. Postideks kasutaks 45x95 kalibreeritud c24 materjali. Seintesse üks kiht OSB ja peale kipsplaat. Sein jääb helipidav ja tugev. Töö peaks valmima ühe päeva jooksul. Lgp.

Kasutaja ikoon ID67756
Pakkuja profiil Väike nool paremale
2 200€ KM lisandub KM lisandub 02.12.2024 Vestlus (0)

Pakkumise kirjeldus:

Tööaeg : 2 tööpäeva

Kasutaja ikoon ID45349
Pakkuja profiil Väike nool paremale
750€ KM lisandub KM lisandub 03.12.2024 Vestlus (0)

Pakkumise kirjeldus:

Tere!
Hinnapakkumine hankes kirjeldatud töödele ja materjalidele. Hinnas sisaldub ka transport ja prügi utiliseerimine.

Parimaga
Heiki

Kasutaja ikoon ID60852
Pakkuja profiil Väike nool paremale
1 600€ KM lisandub KM lisandub 03.12.2024 Vestlus (0)

Pakkumise kirjeldus:

Pakkumine tööle koos materjalidega.

Küsimused hanke korraldajale

Küsimus: private ID76530   26.11.2024 18:37
Tere,
Klaasist vaheseina ei pakuks huvi?(nt satiinist - ei paista läbi) Paigaldus võtab aega 4-5 tundi.
Kui pakub huvi saame teha teile pakkumise.
Lgp

Teavita reeglite rikkumisest

Korraldaja vastus: 26.11.2024 20:11

Tere,

klaasist vahesein seekord huvi ei paku.

Teavita reeglite rikkumisest

Küsimus: private ID86608   27.11.2024 07:12
Tervist,

Kas põrandaks on põrandalaud, või on ujuvparkett?

Teavita reeglite rikkumisest

Korraldaja vastus: 27.11.2024 08:19

põrandaks on põrandalaud.

Teavita reeglite rikkumisest

Küsimus: private ID18214   29.11.2024 18:47
Tere. Seina annab teha erineva laiusega.
küsimus on,kui heli kindel peaks olema sein.
Kas peab olema heli kindel. Või on lihtsalt vahesein

Teavita reeglite rikkumisest

Korraldaja vastus: 30.11.2024 11:16

sein peab ikka heli ka pidama. Praegu oleme plaanides arvestanud kogupaksusega 150mm, karkassile jääb sellest ca 100. Karkassitootjad ise väiksemat profiili ei soovita nii kõrge seina puhul, samas kui vaja saab paksust natuke juurde anda.

Teavita reeglite rikkumisest

Küsimus: private ID18214   30.11.2024 11:50
Tere. Kas 200 mm seina kogupaksusega oleks ok.
Karkassiks 2x 39x66 Kertopuu
https://puumarket.ee/toode/liimkihtpuit-39x66x4000mm/

Teavita reeglite rikkumisest

Korraldaja vastus: 30.11.2024 12:07

Kui see lisa 50mm tõstab seina helipidavust märgatavalt siis on see täiesti ok.
Kas ma saan õigesti aru et tahate kasutada kahte kertopuu kihti? Mis oleks selle kasu? Kaks õhukest kihti on paindele oluliselt nõrgem kui üks monoliitne element.

Teavita reeglite rikkumisest

Küsimus: private ID18214   30.11.2024 12:22
Tõstab helipidavust märgatavalt.
ja ei jää nõrgaks.
Oleme selliseid vaheseinu teinud paarismajadele mille vahel on selliselt lahendatud. Oleks teile pilt näidata läbilõikest, ag siia seda pilti panna ei saa.

Teavita reeglite rikkumisest

Korraldaja vastus: 30.11.2024 12:26

Ok, kõlab huvitavalt tehke pakkumine nii nagu olete mõelnud.

Teavita reeglite rikkumisest

Küsimus: private ID18214   30.11.2024 12:27
Panen pildi oma piltide kogusse sealt näete enam vähem milleg tegu.

Teavita reeglite rikkumisest

Korraldaja vastus: 30.11.2024 12:42

Vaatasin ja arvan et sain aru mida mõtlete. kummagile seina poiolele omna konstruktsioon.

Teavita reeglite rikkumisest

Küsimus: private ID18214   30.11.2024 12:31
Lisatud kõige viimane pilt.
Täit ülevaadet ei saa,aga midagi siiski.

Teavita reeglite rikkumisest

Korraldaja vastus:
Hanke korraldaja ei ole küsimusele veel vastanud

Küsimus: private ID18214   30.11.2024 12:45
Just. Keskel on 15-18 mm vahe. Seina kogu laius tuleb 200mm.

Teavita reeglite rikkumisest

Korraldaja vastus:
Hanke korraldaja ei ole küsimusele veel vastanud

Küsimus: private ID18214   30.11.2024 14:00
Kas olete saanud veits mõelda ja arutada,kui selline süsteem võiks teile sobida,siis teeks pakkumise.
Lugupidamisega
Joel.

Teavita reeglite rikkumisest

Korraldaja vastus: 30.11.2024 14:17

Põhimõte sobib, peab veel mõtlema ega see lahendus overkill ei ole. Seda just sein vs ümbritsev konstruktsioon mõttes. Tehke pakkumine, saame seal all edasi rääkida.

Teavita reeglite rikkumisest

Lisa küsimus

Lisa küsimus

Minu pakkumine

Reeglid

Pakkumise kirjelduse väli on mõeldud pakkumise detailsemaks lahti kirjutamiseks. Pikema teksti mugavaks sisestamiseks klikkige kasti paremal ülaservas oleval ikoonil.
Pakkumist tehes on keelatud postitada enda kontaktandmeid (nimi, telefon, aadress jne). Me jälgime ja analüüsime pakkumisi, et vältida pettuseid ja reeglite rikkumisi.
Rikkumise puhul kasutajakonto blokeeritakse.

 

Teisi töid samas valdkonnas

Valdkonnas "Üldehitus" on 36 aktiivset tööd

Kuuri lammutus

Asukoht: Harjumaa, Kangru
Aega jäänud: 2p 11h
Tehtud pakkumisi: 9

Terrass ehitus3×2m aiamaja ette ja kõrvale

Asukoht: Harjumaa, Keila-Joa
Aega jäänud: 11h 41 min
Tehtud pakkumisi: 5

Vanemad teated:

Vaata kõiki

Sellel veebilehel kasutatakse küpsiseid. Kasutamist jätkates nõustute küpsiste kasutamisega.

Sulge
 
Minu pakkumine

Reeglid

Pakkumise kirjelduse väli on mõeldud pakkumise detailsemaks lahti kirjutamiseks. Pikema teksti mugavaks sisestamiseks klikkige kasti paremal ülaservas oleval ikoonil.
Pakkumist tehes on keelatud postitada enda kontaktandmeid (nimi, telefon, aadress jne). Me jälgime ja analüüsime pakkumisi, et vältida pettuseid ja reeglite rikkumisi.
Rikkumise puhul kasutajakonto blokeeritakse.