+ Lisa oma töö      

Otsid ehitajat "Põrandaküte, paigaldus" valdkonnast?

Parima pakkumise ja teostaja leidmiseks lisa oma töö.

Põrandakütte kontuuride ja kollektori paigaldus

ID 107376

1629 vaatamist

Prindi

  • check Pakkumiste tegemine
    kuni 22.12.2024
  • check Võitja valik kuni
    29.12.2024
  • 3 Töö teostamine
    ja hinnang
Hanke lõpp: P, 22. detsember, 2024
Maakond: Lääne-Virumaa
Muu asula: Altja
Tööde lõpp: R, 10. jaanuar, 2025
Ehitusmaterjalid: Töö tegija poolt
Soovin pakkumisi: Summa kogu projektile

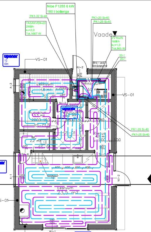
Töö sisu

Tere!
Ca 05 jaanuari ja 10 jaanuari vahel vaja paigaldada põrandakütte kontuur Altja kandis.
Toru Uponor Wirsbo Q&E pePEX 20mm (info joonisel). Kontuuri samm 200mm.

Põrand valatakse 150mm EPS (50+100) peale, kipspõrand 50mm.
Kontuur vaja paigaldada klambritega EPSi peale.

Põrand kokku ca 60 m2, vaheseintest on olemas tehnilise ruumi karkass ja teiste vaheseinte alumised kivirivid ja puitkarkass.

Majas on tööde ajal min +5-6C, vajadusel kontuuri paigalduse ajal min +10C.

Materjalide ja tööde hulka kuulub:
1. Küttetoru 20mm (ca 300m)
2. Paigaldusklambrid
3. Kollektor (kuhu võimalik hiljem elektrilised ajamid panna)
4. Survestamine ja survestusakt

Kipsivalu planeeritud ca 15 jaanuar.

KT

Pildid, video ja failid

Hanke korraldaja: ettevõte ID72365

Pakkumised

Pakkumisi kokku: 4

Ettevõte Summa Käibemaks Lisatud Vestlus
Kasutaja ikoon ID56040
Pakkuja profiil Väike nool paremale
700€ Ei ole KMKR Ei ole KMKR 15.12.2024 Vestlus (0)

Pakkumise kirjeldus:

Hinnas tööd,transport ja materjalid,
ainult kollektor lisandub poe hinnaga vastavalt kontuuride arvule. Soovi korral valame ka kipsivaluga samal päeval kohe ära. Ca 4-5 pv etteteatamisega.

Kasutaja ikoon ID61954
Pakkuja profiil Väike nool paremale
1 300€ KM lisandub KM lisandub 17.12.2024 Vestlus (0)
Kasutaja ikoon ID50618
Pakkuja profiil Väike nool paremale
1 542€ KM lisandub KM lisandub 21.12.2024 Vestlus (0)

Pakkumise kirjeldus:

Hind sisaldab:
- põrandakütte toru UPONOR COMFORT
- kollektor UPONOR VARIO S FM
- materjalide transporti, muu transpordi kulud
- survestamine
- paigaldustööd
- garantii töödele 2 aastat
Tasumine kohe peale tööde teostust.

Valida võitjaks ainult siis kui olete kindel tööde tellija, kui valite võitjaks, kuid töid ei telli, siis jääb te ... Rohkem

Kasutaja ikoon ID50857
Pakkuja profiil Väike nool paremale
1 630€ Sisaldab KM Sisaldab KM 22.12.2024 Vestlus (0)

Pakkumise kirjeldus:

Tere
Toru paigaldus
Kollektor ja torustile survestus
Tööde kohta koostame KTA ja survekatseakti.
R

Küsimused hanke korraldajale

Hanke korraldajale ei ole veel küsimusi esitatud.

Lisa küsimus

Lisa küsimus

Minu pakkumine

Reeglid

Pakkumise kirjelduse väli on mõeldud pakkumise detailsemaks lahti kirjutamiseks. Pikema teksti mugavaks sisestamiseks klikkige kasti paremal ülaservas oleval ikoonil.
Pakkumist tehes on keelatud postitada enda kontaktandmeid (nimi, telefon, aadress jne). Me jälgime ja analüüsime pakkumisi, et vältida pettuseid ja reeglite rikkumisi.
Rikkumise puhul kasutajakonto blokeeritakse.

 

Vanemad teated:

Vaata kõiki

Sellel veebilehel kasutatakse küpsiseid. Kasutamist jätkates nõustute küpsiste kasutamisega.

Sulge
 
Minu pakkumine

Reeglid

Pakkumise kirjelduse väli on mõeldud pakkumise detailsemaks lahti kirjutamiseks. Pikema teksti mugavaks sisestamiseks klikkige kasti paremal ülaservas oleval ikoonil.
Pakkumist tehes on keelatud postitada enda kontaktandmeid (nimi, telefon, aadress jne). Me jälgime ja analüüsime pakkumisi, et vältida pettuseid ja reeglite rikkumisi.
Rikkumise puhul kasutajakonto blokeeritakse.