+ Lisa oma töö      

Otsid ehitajat "Ventilatsioonitööd" valdkonnast?

Parima pakkumise ja teostaja leidmiseks lisa oma töö.

Ventilatsiooni projekti muutmine.

ID 106729

1178 vaatamist

Prindi

  • check Pakkumiste tegemine
    kuni 13.11.2024
  • check Võitja valik kuni
    20.11.2024
  • 3 Töö teostamine
    ja hinnang
Hanke lõpp: K, 13. november, 2024
Maakond: Harjumaa
Linn: Tallinn
Tööde lõpp: Kokkuleppel
Ehitusmaterjalid: Töö tellija poolt
Soovin pakkumisi: Summa kogu projektile

Töö sisu

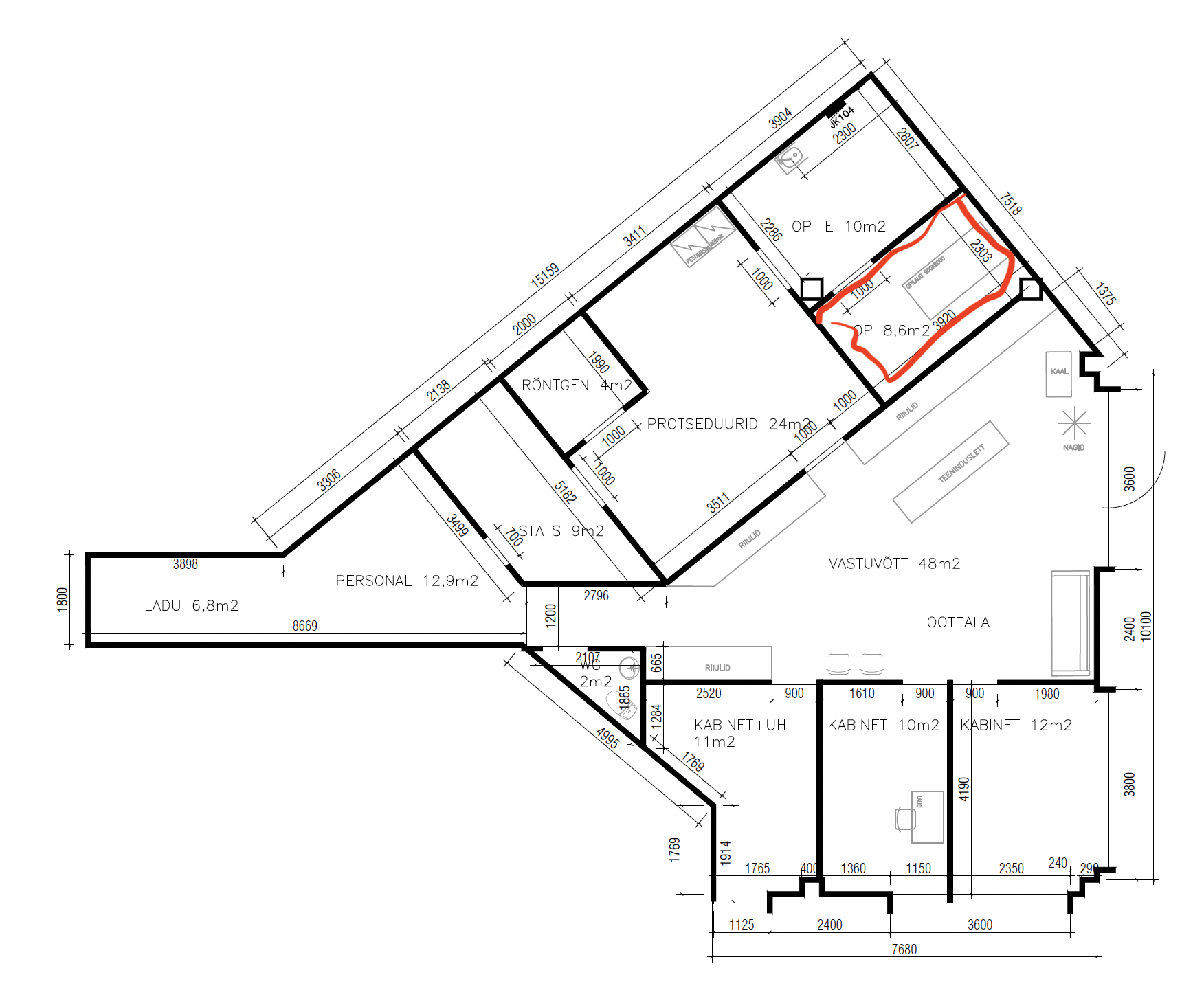
Plaan muuta olemasolevat ventilatsiooni, mis on hetkel kohandatud ühele suurele 158,7 ruutmeetrisele ruumile, mille lae kõrgus on 4m.Soov on ehitada sinna üheksa väiksemat ruumi, millele oleks vaja siis uut ventilatsiooni projekti.


OP 8,6 tuleb ainult väljatõmme, mille saab siis lahendada eraldiseisva ventilaatoriga.

Pildid, video ja failid

Hanke korraldaja: ettevõte ID72273

Pakkumised

Pakkumisi kokku: 2

Ettevõte Summa Käibemaks Lisatud Vestlus
Kasutaja ikoon ID63115
Pakkuja profiil Väike nool paremale
1 300€ KM lisandub KM lisandub 07.11.2024 Vestlus (4)

Pakkumise kirjeldus:

Hinnapakkumine sisaldab ventilatsioonisüsteemi põhiprojekti.
Ettemaksu ei soovi. Vastutava isiku allkiri on hinna sees.
Ventilatsiooni pakkumine sisaldab õhuhulkade arvutamist, ventilatsiooni süsteemi projekteerimist, magistraalide jooniseid, põhiseadmete mahuloetelu ja seletuskirja. (vastavalt EVS:906 2018).

Pakkumine kehtib 1 kuu.

Kasutaja ikoon ID82852
Pakkuja profiil Väike nool paremale
1 250€ Sisaldab KM Sisaldab KM 13.11.2024 Vestlus (0)

Pakkumise kirjeldus:

Ventilatsiooni ehitusprojekti koostamine.

Küsimused hanke korraldajale

Hanke korraldajale ei ole veel küsimusi esitatud.

Lisa küsimus

Lisa küsimus

Minu pakkumine

Reeglid

Pakkumise kirjelduse väli on mõeldud pakkumise detailsemaks lahti kirjutamiseks. Pikema teksti mugavaks sisestamiseks klikkige kasti paremal ülaservas oleval ikoonil.
Pakkumist tehes on keelatud postitada enda kontaktandmeid (nimi, telefon, aadress jne). Me jälgime ja analüüsime pakkumisi, et vältida pettuseid ja reeglite rikkumisi.
Rikkumise puhul kasutajakonto blokeeritakse.

 

Vanemad teated:

Vaata kõiki

Sellel veebilehel kasutatakse küpsiseid. Kasutamist jätkates nõustute küpsiste kasutamisega.

Sulge
 
Minu pakkumine

Reeglid

Pakkumise kirjelduse väli on mõeldud pakkumise detailsemaks lahti kirjutamiseks. Pikema teksti mugavaks sisestamiseks klikkige kasti paremal ülaservas oleval ikoonil.
Pakkumist tehes on keelatud postitada enda kontaktandmeid (nimi, telefon, aadress jne). Me jälgime ja analüüsime pakkumisi, et vältida pettuseid ja reeglite rikkumisi.
Rikkumise puhul kasutajakonto blokeeritakse.