+ Lisa oma töö      

Otsid ehitajat "Ventilatsioonitööd" valdkonnast?

Parima pakkumise ja teostaja leidmiseks lisa oma töö.

Ventilatsioonisüsteemi ehitus (uus eramu)

ID 106517

1505 vaatamist

Prindi

  • check Pakkumiste tegemine
    kuni 15.11.2024
  • check Võitja valik kuni
    22.11.2024
  • 3 Töö teostamine
    ja hinnang
Hanke lõpp: R, 15. november, 2024
Maakond: Harjumaa
Linn: Tallinn
Tööde lõpp: R, 10. jaanuar, 2025
Ehitusmaterjalid: Töö tegija poolt
Soovin pakkumisi: Summa kogu projektile

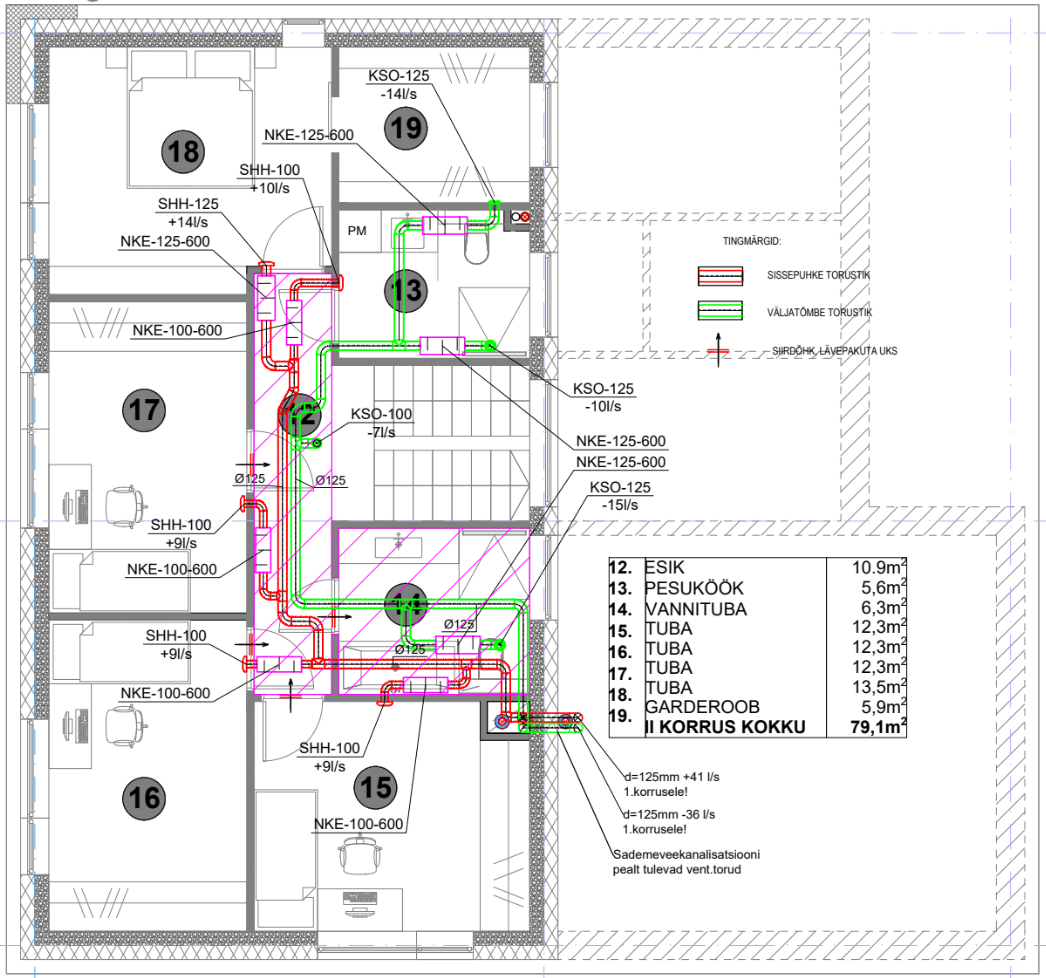
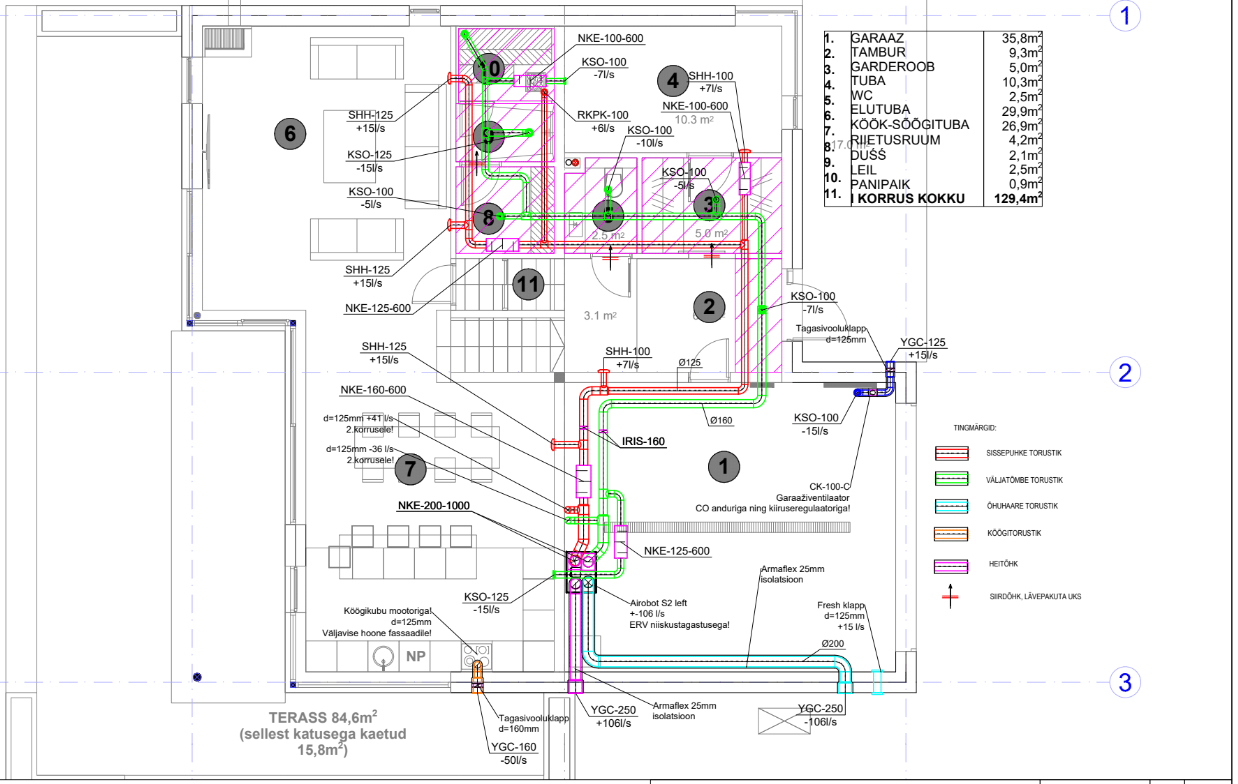
Töö sisu

Objekti kirjeldus:
- 2-korrusele eramu (210 m2) on kinnise köetava karbi kujul valmis ilma siseseinadeta.
- siseseinad tulevad kipsist järgi või parralleelselt venttöödega.
- avade puurimise kandvatesse seinadesse teeb teine töövõtja.
- töödega saab alustada kohe, kuid tuleb lõpetada 10. jaanuar 2025. a.
- juurdepääs transpordiga, ladustamise koht, elekter, vesi ja küte olemas.
- tööde lõpus tehakse ventilatsioonisüsteemide mõõdistamine vastavalt standardile EVS-EN 12599:2012 ja tehtud tööd peavad vastama projektiga etteantud näitajatele.

Sinu pakkumnie peab sisaldama spetsifikatsiooni MATERJALIDE + TÖÖDE maksumust järgmiselt:
1.) materjalide maksumus vastavalt spetsifikatsioonis (lisatud Excel) toodule (ilma vent.agregaadita ja ilma KM-ta).
2.) tööde maksumus (ilma KM-ta), mis sisaldab ka ventseadme tööle rakendamist (elektritööd on tellija poolt), seadistamist ja reguleerimist;

Sooviks saada täiendavalt ka infot:
1.) Materjalide asendamisel, mis on uus pakutav materjal.
2.) Võimalike lisatööde maksumus, tunnitasuna (ilma KM-ta).
3.) võimalik tööde algusaeg, kuupäev.
4.) tööde eeldatav kestvus, tööpäevades.

Pildid, video ja failid

Hanke korraldaja: eraisik ID35849

Pakkumised

Pakkumisi kokku: 1

Ettevõte Summa Käibemaks Lisatud Vestlus
Kasutaja ikoon ID60355
Pakkuja profiil Väike nool paremale
7 895€ KM lisandub KM lisandub 02.11.2024 Vestlus (0)

Pakkumise kirjeldus:

Ventilaator+ fresh 264,87
Kanaliosad, torud, põlved, klapid 990,27
Mürasummutajad (lindab) 1068,42
Lõppseadmed 722,28
Abimaterjal 178,66
Paigaldus ... Rohkem

Küsimused hanke korraldajale

Hanke korraldajale ei ole veel küsimusi esitatud.

Lisa küsimus

Lisa küsimus

Minu pakkumine

Reeglid

Pakkumise kirjelduse väli on mõeldud pakkumise detailsemaks lahti kirjutamiseks. Pikema teksti mugavaks sisestamiseks klikkige kasti paremal ülaservas oleval ikoonil.
Pakkumist tehes on keelatud postitada enda kontaktandmeid (nimi, telefon, aadress jne). Me jälgime ja analüüsime pakkumisi, et vältida pettuseid ja reeglite rikkumisi.
Rikkumise puhul kasutajakonto blokeeritakse.

 

Vanemad teated:

Vaata kõiki

Sellel veebilehel kasutatakse küpsiseid. Kasutamist jätkates nõustute küpsiste kasutamisega.

Sulge
 
Minu pakkumine

Reeglid

Pakkumise kirjelduse väli on mõeldud pakkumise detailsemaks lahti kirjutamiseks. Pikema teksti mugavaks sisestamiseks klikkige kasti paremal ülaservas oleval ikoonil.
Pakkumist tehes on keelatud postitada enda kontaktandmeid (nimi, telefon, aadress jne). Me jälgime ja analüüsime pakkumisi, et vältida pettuseid ja reeglite rikkumisi.
Rikkumise puhul kasutajakonto blokeeritakse.