+ Lisa oma töö      

Otsid ehitajat "Mööbli kokkupanek ja paigaldus" valdkonnast?

Parima pakkumise ja teostaja leidmiseks lisa oma töö.

Hange on lõppenud!

Võitjaks osutus kasutaja ID 69703

Korraldaja hinnang tehtud tööle

5.0
24.11.2024
Töökiirus: 12345
Kvaliteet: 12345
Hind: 12345

Jäin väga rahule! Väga asjalik ja abivalmis lähenemine. Lahendustele orienteeritud teenusepakkuja. - Ella K.

IKEA köögi paigaldus

ID 106327

1194 vaatamist

Prindi

  • check Pakkumiste tegemine
    kuni 31.10.2024
  • check Võitja valik kuni
    07.11.2024
  • 3 Töö teostamine
    ja hinnang
Hanke lõpp: N, 31. oktoober, 2024
Maakond: Tartumaa
Linn: Tartu
Tööde lõpp: Kokkuleppel
Ehitusmaterjalid: Töö tellija poolt
Soovin pakkumisi: Summa kogu projektile

Töö sisu

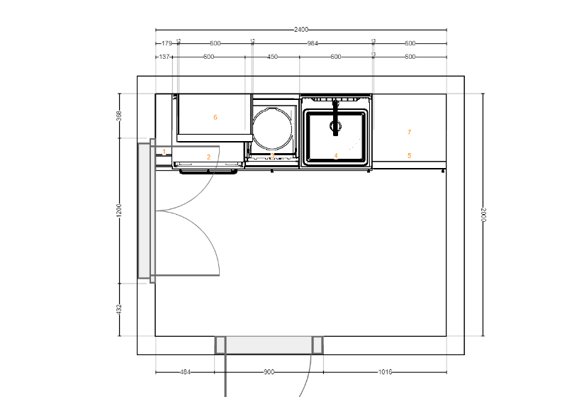
Ikea köögi ja garderoobikapi kokkupanek/paigaldus
Köögis lisaks 2 avatud riiulit ja mingi katteliist vms kubust tuleva toru peitmiseks

Pildid, video ja failid

Hanke korraldaja: eraisik ID58769

Pakkumised

Pakkumisi kokku: 2    

Ettevõte Summa Käibemaks Ettemaks Lisatud Vestlus
Private Crown ID69703 5.0 480,0 € Lisandub hinnale Lisandub hinnale Ei soovi 28.10.2024 Vestlus (4)

Ettevõtte lühiinfo (vaata täisprofiili ID69703 ) :

Firma nimi: ******** **
E-mail: ******************
Telefon: ********
Kontaktisik: ***** *******
Asukoht: **** *** ***** ***** **** ******** *****
Käive: 15288.00
(periood 01.07.2025 - 30.09.2025)
Töötajaid: Andmed puuduvad
Asutatud: 2021
MTR: Andmed puuduvad
Maksuvõlg: puudub (seisuga 09.12.2025)

Keskmine hinnang:

5.0
Töökiirus: 12345
Kvaliteet: 12345
Hind: 12345

Hinnanguid: 5
Tehtud tööde pildid: 0

Private ID74673 4.9 900,0 € Ei ole KMKR Ei ole KMKR Ei soovi 30.10.2024 Vestlus (0)

Ettevõtte lühiinfo (vaata täisprofiili ID74673 ) :

Firma nimi: ********** ******** **
E-mail: *******************
Telefon: **** ********
Kontaktisik: ***** ******
Asukoht: ********** ***** **** ******** *****
Käive: 0.00
(periood 01.10.2024 - 31.12.2024)
Töötajaid: 1
(seisuga 31.12.2024)
Asutatud: 2023
MTR: Andmed puuduvad
Maksuvõlg: puudub (seisuga 09.12.2025)

Keskmine hinnang:

4.9
Töökiirus: 12345
Kvaliteet: 12345
Hind: 12345

Hinnanguid: 7
Tehtud tööde pildid: 10

Pakkumise kirjeldus:

Tervist. Pakkumine sisaldab kõiki hankes kirjeldatud töid. Parimat soovides, Taavi.

Küsimused hanke korraldajale

Hanke korraldajale ei ole veel küsimusi esitatud.

Lisa küsimus

Lisa küsimus

Minu pakkumine

%

Reeglid

Pakkumise kirjelduse väli on mõeldud pakkumise detailsemaks lahti kirjutamiseks. Pikema teksti mugavaks sisestamiseks klikkige kasti paremal ülaservas oleval ikoonil.
Pakkumist tehes on keelatud postitada enda kontaktandmeid (nimi, telefon, aadress jne). Me jälgime ja analüüsime pakkumisi, et vältida pettuseid ja reeglite rikkumisi.
Rikkumise puhul kasutajakonto blokeeritakse.

 

Vanemad teated:

Vaata kõiki

Sellel veebilehel kasutatakse küpsiseid. Kasutamist jätkates nõustute küpsiste kasutamisega.

Sulge
 
Minu pakkumine
%

Reeglid

Pakkumise kirjelduse väli on mõeldud pakkumise detailsemaks lahti kirjutamiseks. Pikema teksti mugavaks sisestamiseks klikkige kasti paremal ülaservas oleval ikoonil.
Pakkumist tehes on keelatud postitada enda kontaktandmeid (nimi, telefon, aadress jne). Me jälgime ja analüüsime pakkumisi, et vältida pettuseid ja reeglite rikkumisi.
Rikkumise puhul kasutajakonto blokeeritakse.