+ Lisa oma töö      

Otsid ehitajat "Katusetööd" valdkonnast?

Parima pakkumise ja teostaja leidmiseks lisa oma töö.

Katuse raami ehitus

ID 106057

1534 vaatamist

Prindi

  • check Pakkumiste tegemine
    kuni 26.10.2024
  • check Võitja valik kuni
    02.11.2024
  • 3 Töö teostamine
    ja hinnang
Hanke lõpp: L, 26. oktoober, 2024
Maakond: Harjumaa
Linn: Tallinn
Tööde lõpp: Kokkuleppel
Ehitusmaterjalid: Töö tellija poolt
Soovin pakkumisi: Summa kogu projektile

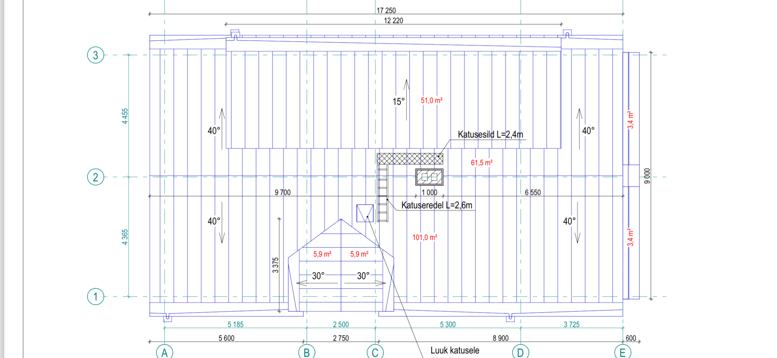
Töö sisu

Katuse raami ehitus, kokku 220m2
Tellingud ja materjalid olemas, vana katuse kate ja roov on eemaldatud, alustada saab kohe!

Pildid, video ja failid

Hanke korraldaja: ettevõte ID59528

Pakkumised

Pakkumisi kokku: 3

Ettevõte Summa Käibemaks Lisatud Vestlus
Kasutaja ikoon ID54528
Pakkuja profiil Väike nool paremale
22 000€ KM lisandub KM lisandub 26.10.2024 Vestlus (4)

Pakkumise kirjeldus:

Tere,

Sisaldab konstruktsiooni ehitust, müürilatist kuni roovituseni.

Kasutaja ikoon ID52293
Pakkuja profiil Väike nool paremale
13 000€ Sisaldab KM Sisaldab KM 26.10.2024 Vestlus (0)

Pakkumise kirjeldus:

Tere
Juhul kui soovite meid valida hanke võitjaks peaks eelnevalt kokku leppima makse tingimustes
Tänud

Kasutaja ikoon ID77867
Pakkuja profiil Väike nool paremale
10 550€ KM lisandub KM lisandub 26.10.2024 Vestlus (0)

Pakkumise kirjeldus:

Tere !
Hind sisaldab katuse toolvärgi ehitamist tellija materjalist kuni roovituseni.

Küsimused hanke korraldajale

Küsimus: private ID46961   23.10.2024 13:09
Tere.
Mida te täpsemalt katuse raami ehituse all silmas peate?

Teavita reeglite rikkumisest

Korraldaja vastus:
Hanke korraldaja ei ole küsimusele veel vastanud

Küsimus: private ID18214   23.10.2024 18:10
Tere.
Lisge pilte hetke olukorrast.

Teavita reeglite rikkumisest

Korraldaja vastus:
Hanke korraldaja ei ole küsimusele veel vastanud

Lisa küsimus

Lisa küsimus

Minu pakkumine

Reeglid

Pakkumise kirjelduse väli on mõeldud pakkumise detailsemaks lahti kirjutamiseks. Pikema teksti mugavaks sisestamiseks klikkige kasti paremal ülaservas oleval ikoonil.
Pakkumist tehes on keelatud postitada enda kontaktandmeid (nimi, telefon, aadress jne). Me jälgime ja analüüsime pakkumisi, et vältida pettuseid ja reeglite rikkumisi.
Rikkumise puhul kasutajakonto blokeeritakse.

 

Teisi töid samas valdkonnas

Valdkonnas "Katusetööd" on 9 aktiivset tööd

no-img Pilt puudub

Käidava katuse PVC 54m2

Asukoht: Harjumaa, Muraste
Aega jäänud: 4p 16h
Tehtud pakkumisi: 3

Garaaži katuse vahetamine

Asukoht: Harjumaa, Viimsi
Aega jäänud: 13p 16h
Tehtud pakkumisi: 2

Vanemad teated:

Vaata kõiki

Sellel veebilehel kasutatakse küpsiseid. Kasutamist jätkates nõustute küpsiste kasutamisega.

Sulge
 
Minu pakkumine

Reeglid

Pakkumise kirjelduse väli on mõeldud pakkumise detailsemaks lahti kirjutamiseks. Pikema teksti mugavaks sisestamiseks klikkige kasti paremal ülaservas oleval ikoonil.
Pakkumist tehes on keelatud postitada enda kontaktandmeid (nimi, telefon, aadress jne). Me jälgime ja analüüsime pakkumisi, et vältida pettuseid ja reeglite rikkumisi.
Rikkumise puhul kasutajakonto blokeeritakse.