+ Lisa oma töö      

Otsid ehitajat "Siseviimistlustööd" valdkonnast?

Parima pakkumise ja teostaja leidmiseks lisa oma töö.

Mikrotsement

ID 105727

2185 vaatamist

Prindi

  • check Pakkumiste tegemine
    kuni 30.10.2024
  • check Võitja valik kuni
    06.11.2024
  • 3 Töö teostamine
    ja hinnang
Hanke lõpp: K, 30. oktoober, 2024
Maakond: Harjumaa
Muu asula: Männiku
Tööde lõpp: Kokkuleppel
Ehitusmaterjalid: Töö tegija poolt
Soovin pakkumisi: Summa kogu projektile

Töö sisu

Mikrotsemendi paigaldus betoonpõrandale 60m2
Ol.olev põrand- betoon punase pigmendiga, lakitud ja vahatatud, 15 a. vana, betoonipragudega.
8m2 pinna peal ol.olev keraamiline plaat, mis tuleb eemaldada.
kogu tööde teostusaeg võiks olla max 2 nädalat
vajadusel saan ka ise materjali osta

Pildid, video ja failid

Hanke korraldaja: eraisik ID85924

Pakkumised

Pakkumisi kokku: 2

Ettevõte Summa Käibemaks Lisatud Vestlus
Kasutaja ikoon ID85299
Pakkuja profiil Väike nool paremale
4 680€ Ei ole KMKR Ei ole KMKR 16.10.2024 Vestlus (13)

Pakkumise kirjeldus:

Tere!
Mikrotsemendi paigaldus betoonpõrandale 60m2
Ol.olev põrand- betoon punase pigmendiga, lakitud ja vahatatud, 15 a. vana, betoonipragudega.
8m2 pinna peal ol.olev keraamiline plaat, mis tuleb eemaldada.
kokku ilma materjalita=4680 euro

Kasutaja ikoon ID63220
Pakkuja profiil Väike nool paremale
6 500€ KM lisandub KM lisandub 22.10.2024 Vestlus (0)

Küsimused hanke korraldajale

Küsimus: private ID38464   17.10.2024 19:02
Tere. Pilti põrandast.?

Teavita reeglite rikkumisest

Korraldaja vastus: 18.10.2024 12:59

Lisasin kaks pilti

Teavita reeglite rikkumisest

Küsimus: private ID63220   20.10.2024 07:22
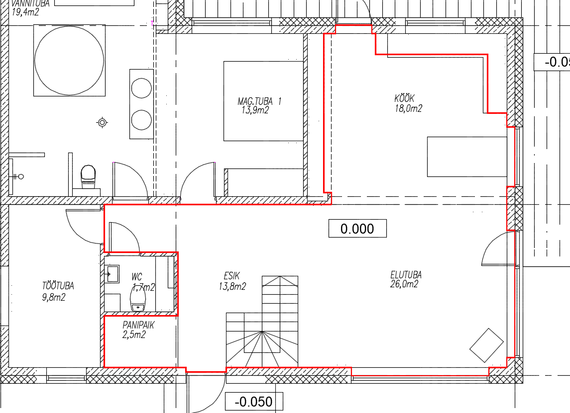
Tere, kas saaks ka põranda joonise?

Teavita reeglite rikkumisest

Korraldaja vastus: 21.10.2024 09:36

Lisasin joonise

Teavita reeglite rikkumisest

Lisa küsimus

Lisa küsimus

Minu pakkumine

Reeglid

Pakkumise kirjelduse väli on mõeldud pakkumise detailsemaks lahti kirjutamiseks. Pikema teksti mugavaks sisestamiseks klikkige kasti paremal ülaservas oleval ikoonil.
Pakkumist tehes on keelatud postitada enda kontaktandmeid (nimi, telefon, aadress jne). Me jälgime ja analüüsime pakkumisi, et vältida pettuseid ja reeglite rikkumisi.
Rikkumise puhul kasutajakonto blokeeritakse.

 

Teisi töid samas valdkonnas

Valdkonnas "Siseviimistlustööd" on 24 aktiivset tööd

Korteri remont

Asukoht: Harjumaa, Muraste
Aega jäänud: 2p 4h
Tehtud pakkumisi: 16

Seinte värvimine

Asukoht: Harjumaa, Tallinn
Aega jäänud: 4h 11 min
Tehtud pakkumisi: 7

Vanemad teated:

Vaata kõiki

Sellel veebilehel kasutatakse küpsiseid. Kasutamist jätkates nõustute küpsiste kasutamisega.

Sulge
 
Minu pakkumine

Reeglid

Pakkumise kirjelduse väli on mõeldud pakkumise detailsemaks lahti kirjutamiseks. Pikema teksti mugavaks sisestamiseks klikkige kasti paremal ülaservas oleval ikoonil.
Pakkumist tehes on keelatud postitada enda kontaktandmeid (nimi, telefon, aadress jne). Me jälgime ja analüüsime pakkumisi, et vältida pettuseid ja reeglite rikkumisi.
Rikkumise puhul kasutajakonto blokeeritakse.