+ Lisa oma töö      

Otsid ehitajat "Fassaaditööd" valdkonnast?

Parima pakkumise ja teostaja leidmiseks lisa oma töö.

Fibo 3 200 104m2 välisseina ladumine

ID 105497

2467 vaatamist

Prindi

  • check Pakkumiste tegemine
    kuni 09.11.2024
  • check Võitja valik kuni
    16.11.2024
  • 3 Töö teostamine
    ja hinnang
Hanke lõpp: L, 9. november, 2024
Maakond: Järvamaa
Tööde lõpp: Kokkuleppel
Ehitusmaterjalid: Töö tellija poolt
Soovin pakkumisi: Summa kogu projektile

Töö sisu

Fibo 3 200 ladumine. Ca 104 m2.
Aknad välja arvestatud. Materjal + sillused objektil. Oodatud kogemustega ja referentsidega tegijad. Projekti järgi.
Arve võimalus.

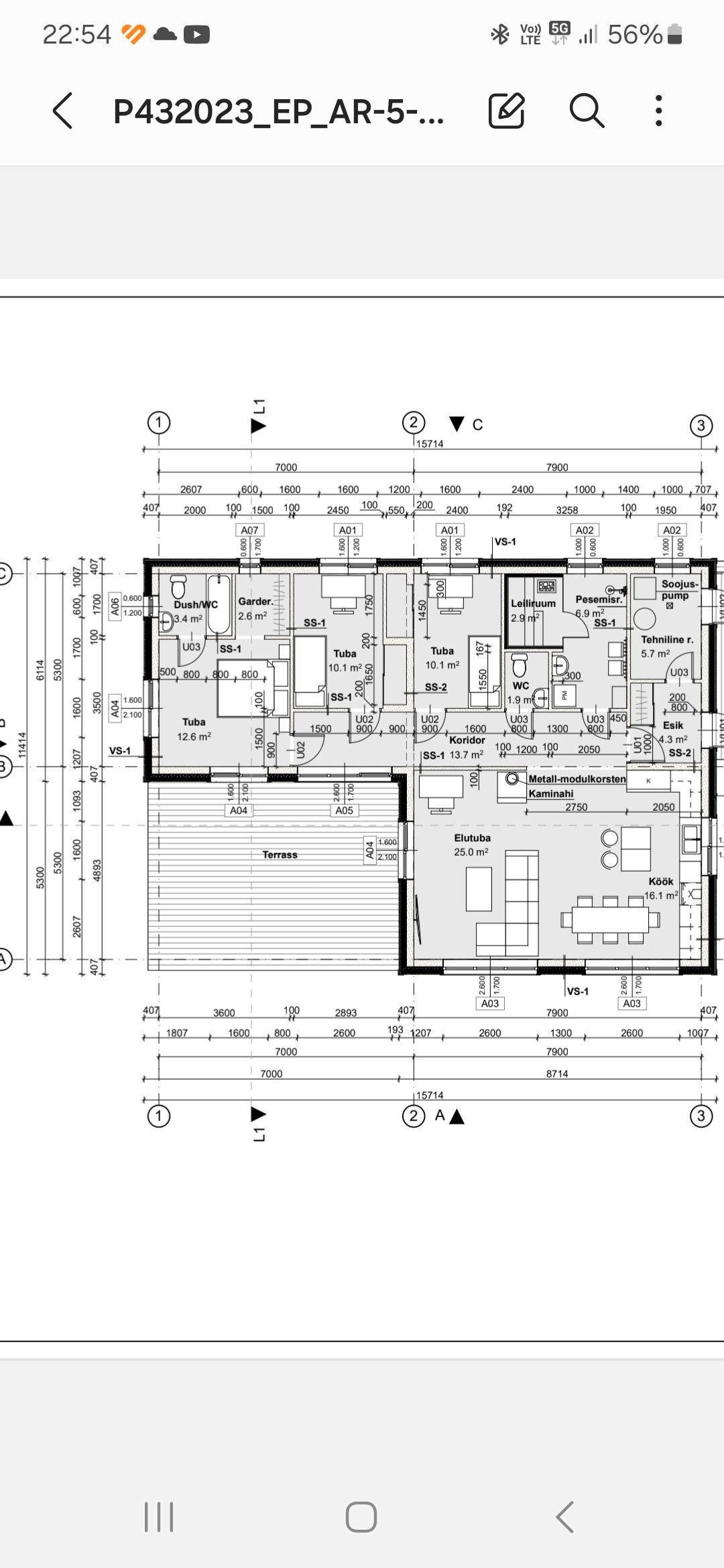
Pildid, video ja failid

Hanke korraldaja: ettevõte ID85818

Pakkumised

Pakkumisi kokku: 2

Ettevõte Summa Käibemaks Lisatud Vestlus
Kasutaja ikoon ID84651
Pakkuja profiil Väike nool paremale
1 500€ Ei ole KMKR Ei ole KMKR 11.10.2024 Vestlus (0)

Pakkumise kirjeldus:

Tere

Hinna sees too ja tööriistad
Kogemus 12 aastat
Too kestab 4 päeva

Lg

Kasutaja ikoon ID8633
Pakkuja profiil Väike nool paremale
2 600€ KM lisandub KM lisandub 09.11.2024 Vestlus (0)

Küsimused hanke korraldajale

Küsimus: private ID18214   03.11.2024 22:34
Tere. Kui peaks vaja minema katuse,fassaadi, terrassi ehitajaid.
Siis pakuks ennast.

Teavita reeglite rikkumisest

Korraldaja vastus: 04.11.2024 14:17

Tere.
Tänud info eest.

Teavita reeglite rikkumisest

Lisa küsimus

Lisa küsimus

Minu pakkumine

Reeglid

Pakkumise kirjelduse väli on mõeldud pakkumise detailsemaks lahti kirjutamiseks. Pikema teksti mugavaks sisestamiseks klikkige kasti paremal ülaservas oleval ikoonil.
Pakkumist tehes on keelatud postitada enda kontaktandmeid (nimi, telefon, aadress jne). Me jälgime ja analüüsime pakkumisi, et vältida pettuseid ja reeglite rikkumisi.
Rikkumise puhul kasutajakonto blokeeritakse.

 

Teisi töid samas valdkonnas

Valdkonnas "Fassaaditööd" on 12 aktiivset tööd

Akende ja viilude parandus ja värvimine

Asukoht: Valgamaa, Valga
Aega jäänud: 17h 14 min
Tehtud pakkumisi: 3

Eramaja vintskapide laudise paigaldus

Asukoht: Pärnumaa, Pärnu-Jaagupi
Aega jäänud: 9p 17h
Tehtud pakkumisi: 2

Vanemad teated:

Vaata kõiki

Sellel veebilehel kasutatakse küpsiseid. Kasutamist jätkates nõustute küpsiste kasutamisega.

Sulge
 
Minu pakkumine

Reeglid

Pakkumise kirjelduse väli on mõeldud pakkumise detailsemaks lahti kirjutamiseks. Pikema teksti mugavaks sisestamiseks klikkige kasti paremal ülaservas oleval ikoonil.
Pakkumist tehes on keelatud postitada enda kontaktandmeid (nimi, telefon, aadress jne). Me jälgime ja analüüsime pakkumisi, et vältida pettuseid ja reeglite rikkumisi.
Rikkumise puhul kasutajakonto blokeeritakse.