+ Lisa oma töö      

Otsid ehitajat "Katusetööd" valdkonnast?

Parima pakkumise ja teostaja leidmiseks lisa oma töö.

Hange on lõppenud!

Võitjaks osutus kasutaja ID 76157

Valts pleki paigaldus

ID 105049

1230 vaatamist

Prindi

  • check Pakkumiste tegemine
    kuni 25.11.2024
  • check Võitja valik kuni
    02.12.2024
  • 3 Töö teostamine
    ja hinnang
Hanke lõpp: E, 25. november, 2024
Maakond: Harjumaa
Tööde lõpp: Kokkuleppel
Ehitusmaterjalid: Töö tellija poolt
Soovin pakkumisi: Summa kogu projektile

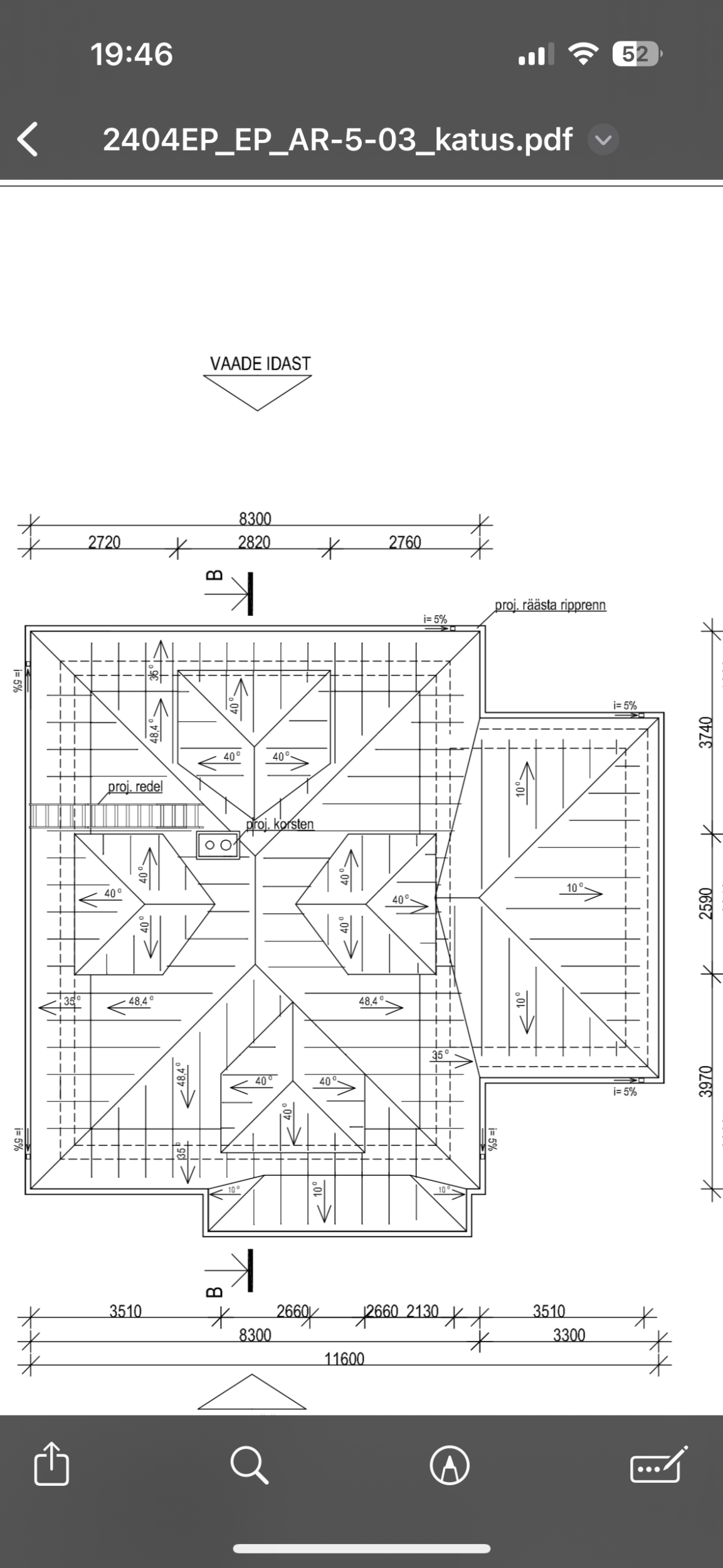
Töö sisu

Tere,

Vaja paigaldada käsi valts plekk, materjal olemas ja katuse raam valmis
Katus kokku 160m2
Alustada saab koheselt

Pildid, video ja failid

Hanke korraldaja: ettevõte ID59528

Pakkumised

Pakkumisi kokku: 2

Ettevõte Summa Käibemaks Lisatud Vestlus
Kasutaja ikoon ID86634
Pakkuja profiil Väike nool paremale
7 500€ KM lisandub KM lisandub 23.11.2024 Vestlus (0)
Kasutaja ikoon ID76157
Pakkuja profiil Väike nool paremale
5 500€ KM lisandub KM lisandub 25.11.2024 Vestlus (2)

Pakkumise kirjeldus:

Hinnapakkumine vastavalt hankes kirjeltatule.

Küsimused hanke korraldajale

Küsimus: private ID77898   24.11.2024 17:21
Tere.
Kui pole saladus, siis millises kohas Harjumaal objekt asub? Täpset aadressi ei ole vaja, asukoht on aga oluline.

Teavita reeglite rikkumisest

Korraldaja vastus: 25.11.2024 08:11

Väänas

Teavita reeglite rikkumisest

Küsimus: private ID8321   25.11.2024 11:18
Kas ainult katus?
Vihmaveesüst. ei.

Teavita reeglite rikkumisest

Korraldaja vastus: 25.11.2024 11:46

Jah ainult katus, vihmaveesüsteem on lahendatud ripp renni kujul

Teavita reeglite rikkumisest

Küsimus: private ID8321   25.11.2024 11:26
Kuidas Teil plekipaanid on tellitud(pikad või juppidest)?

Teavita reeglite rikkumisest

Korraldaja vastus: 25.11.2024 11:47

Pikad ja täis paanid

Teavita reeglite rikkumisest

Lisa küsimus

Lisa küsimus

Minu pakkumine

Reeglid

Pakkumise kirjelduse väli on mõeldud pakkumise detailsemaks lahti kirjutamiseks. Pikema teksti mugavaks sisestamiseks klikkige kasti paremal ülaservas oleval ikoonil.
Pakkumist tehes on keelatud postitada enda kontaktandmeid (nimi, telefon, aadress jne). Me jälgime ja analüüsime pakkumisi, et vältida pettuseid ja reeglite rikkumisi.
Rikkumise puhul kasutajakonto blokeeritakse.

 

Teisi töid samas valdkonnas

Valdkonnas "Katusetööd" on 9 aktiivset tööd

no-img Pilt puudub

Käidava katuse PVC 54m2

Asukoht: Harjumaa, Muraste
Aega jäänud: 4p 18h
Tehtud pakkumisi: 3

Garaaži katuse vahetamine

Asukoht: Harjumaa, Viimsi
Aega jäänud: 13p 18h
Tehtud pakkumisi: 2

Vanemad teated:

Vaata kõiki

Sellel veebilehel kasutatakse küpsiseid. Kasutamist jätkates nõustute küpsiste kasutamisega.

Sulge
 
Minu pakkumine

Reeglid

Pakkumise kirjelduse väli on mõeldud pakkumise detailsemaks lahti kirjutamiseks. Pikema teksti mugavaks sisestamiseks klikkige kasti paremal ülaservas oleval ikoonil.
Pakkumist tehes on keelatud postitada enda kontaktandmeid (nimi, telefon, aadress jne). Me jälgime ja analüüsime pakkumisi, et vältida pettuseid ja reeglite rikkumisi.
Rikkumise puhul kasutajakonto blokeeritakse.