+ Lisa oma töö      

Otsid ehitajat "Plaatimistööd" valdkonnast?

Parima pakkumise ja teostaja leidmiseks lisa oma töö.

Plaatimine

ID 104761

462 vaatamist

Prindi

  • check Pakkumiste tegemine
    kuni 29.09.2024
  • check Võitja valik kuni
    06.10.2024
  • 3 Töö teostamine
    ja hinnang
Hanke lõpp: P, 29. september, 2024
Maakond: Harjumaa
Muu asula: Hüüru
Tööde lõpp: Kokkuleppel
Ehitusmaterjalid: Töö tegija poolt
Soovin pakkumisi: Summa kogu projektile

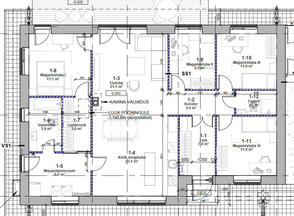
Töö sisu

Vaja plaatida:

Esik - joonisel ala 1-1 - 7m2 - ilmselt 600x600mm plaadid
Majapidamisruum - joonisel ala 1-5 - 9m2 - ilmselt 100x100 plaat, mis läheb ka vannitoale 1-6
Vannituba 1 - joonisel ala 1-6 - 5,9m2 põrandapinda. 100x100 plaat
Vannituba 2 - joonisel ala 1-12 - 3,3m2 põrandapinda. 100x100 plaat

Vannitoa seina pinda kokku u 48,3m2 mõlema vannitoa peale. Plaadid eeldatavasti 200x400 või 200x600

Plaadid toome ise, muud materjalid ja vahendid peaks olema töö tegija poolt. Plaadid lihtsas toonid, seina valged ja maha hallid.

Pildid, video ja failid

Hanke korraldaja: eraisik ID77718

Pakkumised

Pakkumisi kokku: 4

Ettevõte Summa Käibemaks Lisatud Vestlus
Kasutaja ikoon ID44522
Pakkuja profiil Väike nool paremale
3 500€ Ei ole KMKR Ei ole KMKR 27.09.2024 Vestlus (0)
Kasutaja ikoon ID48307
Pakkuja profiil Väike nool paremale
4 490€ Ei ole KMKR Ei ole KMKR 27.09.2024 Vestlus (0)

Pakkumise kirjeldus:

Tere.

Pakkumises:

*vesitõkketööd 2x vannituba
*plaatimistööd ca 75m2

*materjalide maksumus lisandub (umbkaudne kalkulatsioon 800.-)

*pakkumine ei sisalda elektri,-ja torutöid ning seinte krohvimist

*Töödega alustamine võimalik oktoobri lõpp-novembri algus

Silver

Kasutaja ikoon ID70952
Pakkuja profiil Väike nool paremale
2 800€ Ei ole KMKR Ei ole KMKR 29.09.2024 Vestlus (0)

Pakkumise kirjeldus:

Tere,

Pakkumine tehtud 75-80 m2 plaatmisele.
Kui on vaja teha hüdro ka siis natuke lisandub juurde.
Materjal kuskil 500 juurde pakkumise hinnale ja selle saab tsekkide alusel tasuda.

Töödele garantii 2 aastat.

Parimat soovides

Kasutaja ikoon ID63801
Pakkuja profiil Väike nool paremale
5 250€ KM lisandub KM lisandub 29.09.2024 Vestlus (0)

Pakkumise kirjeldus:

Tere, hinnas plaatimine ja kòikvajaminevad materjalid.

Ainult arvega lisandub KM.

Küsimused hanke korraldajale

Hanke korraldajale ei ole veel küsimusi esitatud.

Lisa küsimus

Lisa küsimus

Minu pakkumine

Reeglid

Pakkumise kirjelduse väli on mõeldud pakkumise detailsemaks lahti kirjutamiseks. Pikema teksti mugavaks sisestamiseks klikkige kasti paremal ülaservas oleval ikoonil.
Pakkumist tehes on keelatud postitada enda kontaktandmeid (nimi, telefon, aadress jne). Me jälgime ja analüüsime pakkumisi, et vältida pettuseid ja reeglite rikkumisi.
Rikkumise puhul kasutajakonto blokeeritakse.

 

Teisi töid samas valdkonnas

Valdkonnas "Plaatimistööd" on 2 aktiivset tööd

Trepikoja plaatimine

Asukoht: Tartumaa, Ülenurme
Aega jäänud: 4p 17h
Tehtud pakkumisi: 2

Pesuruumi plaatimine 12.6 m2

Asukoht: Tartumaa, Teedla
Aega jäänud: 1p 17h
Tehtud pakkumisi: 0

Vanemad teated:

Vaata kõiki

Sellel veebilehel kasutatakse küpsiseid. Kasutamist jätkates nõustute küpsiste kasutamisega.

Sulge
 
Minu pakkumine

Reeglid

Pakkumise kirjelduse väli on mõeldud pakkumise detailsemaks lahti kirjutamiseks. Pikema teksti mugavaks sisestamiseks klikkige kasti paremal ülaservas oleval ikoonil.
Pakkumist tehes on keelatud postitada enda kontaktandmeid (nimi, telefon, aadress jne). Me jälgime ja analüüsime pakkumisi, et vältida pettuseid ja reeglite rikkumisi.
Rikkumise puhul kasutajakonto blokeeritakse.