+ Lisa oma töö      

Otsid ehitajat "Betoonitööd" valdkonnast?

Parima pakkumise ja teostaja leidmiseks lisa oma töö.

Hange on lõppenud!

Võitjaks osutus kasutaja ID 75583

Korraldaja hinnang tehtud tööle

5.0
04.10.2024
Töökiirus: 12345
Kvaliteet: 12345
Hind: 12345

Ainult kiidusõnad, soovitan südamest - Enn V.

Väike plaatvundament

ID 104723

679 vaatamist

Prindi

  • check Pakkumiste tegemine
    kuni 26.09.2024
  • check Võitja valik kuni
    26.09.2024
  • 3 Töö teostamine
    ja hinnang
Hanke lõpp: N, 26. september, 2024
Maakond: Harjumaa
Muu asula: Vahi
Tööde lõpp: Kokkuleppel
Ehitusmaterjalid: Töö tegija poolt
Soovin pakkumisi: Summa kogu projektile

Töö sisu

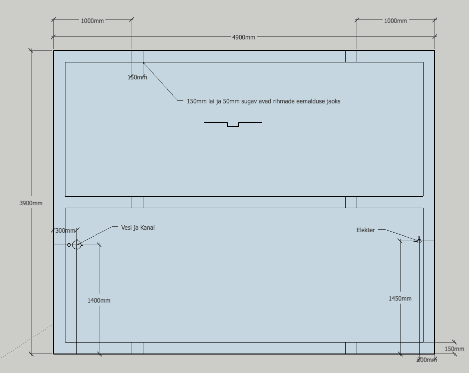
Oleks vaja teha väike plaatvundament (4m x 5m). Joonis on lisatud (näidatud lintvundamenti ei ole vaja) . Betooni paksus umbes 20 cm, ise arvasin kasutada juba armeeritud betooni. Hetkel muld eemaldatud ja laotatud laiali jäme kild. Vee ja kanalisatsiooni torud on juba veetud, elektri jaoks oleks vaja panna lihtsalt toru koos põlvega. Vundamendi pealispind ja alus on tasane, ainult on vaja paigaldada kaks prussi üle vundamendi, et hiljem oleks betoonis kaks soont troppide jaoks. Vajadusel saan tellida nii materjalid kui osa tehnikast. Alustada võib kohe, mida kiirem seda parem. Loomulikult näen ette ka lisakulusid, soovin teada ligikaudset hinda. Ligipääs on hea.

Pildid, video ja failid

Hanke korraldaja: eraisik ID85467

Pakkumised

Pakkumisi kokku: 1

Ettevõte Summa Käibemaks Lisatud Vestlus
Kasutaja ikoon ID75583
Pakkuja profiil Väike nool paremale
3 325€ KM lisandub KM lisandub 26.09.2024 Vestlus (5)

Pakkumise kirjeldus:

Tere,

Meie pakkumine sisaldab:
-aluste tihendajat ja tihendamist kihtide kaupa
-100mm XPS koos transpordi ja paigaldusega
-Elektrikõri koos paigaldusega
- Saalungite paigaldus ja ehituskile
-Betoon u 3m3 C30/37 graniit + 3kg makrokiudu
-Betoonivalu, viimistlusklass tellijaga kokkuleppel
-Saalungite lahti rakestamine, järelhooldus.

Hind hetkel ... Rohkem

Küsimused hanke korraldajale

Küsimus: private ID46077   25.09.2024 22:41
Kommunikatsioonid ka paigaldada?

Teavita reeglite rikkumisest

Korraldaja vastus: 26.09.2024 06:23

Vee ja kanalisatsiooni torud on olemas, elektri jaoks oleks vaja panna lihtsalt toru koos põlvega.

Teavita reeglite rikkumisest

Küsimus: private ID75583   26.09.2024 10:24
Tere,
Palun laadige üles foto hetke seisust.
Kas plaatvundament jääb tulevikus välja või siseruumidesse, mille alusega on tegu?
Kas vee ja kanalisatdioonitoru on ostetud või juba paigas?
Kui hea ligipääs on betoonimiksrile?

Teavita reeglite rikkumisest

Korraldaja vastus: 26.09.2024 10:39

Tere,
vesi ja kanalisatsioon on veetud kohale ja toru otsad on õiges kohas, plaatvundamendile tuleb kerge moodulsaun, millel on juba soojustatud põrand. Ligipääs on hea. Hetkel muld eemaldatud ja täidetud esimese kihiga (jäme kild), tuleks tihendada, panna peenem kild, tihendada, siis liiv, tihendada, paigaldada XPS soojustus ja valada betoon. Elektri jaoks on vaja paigaldada põlvega toru.

Teavita reeglite rikkumisest

Lisa küsimus

Lisa küsimus

Minu pakkumine

Reeglid

Pakkumise kirjelduse väli on mõeldud pakkumise detailsemaks lahti kirjutamiseks. Pikema teksti mugavaks sisestamiseks klikkige kasti paremal ülaservas oleval ikoonil.
Pakkumist tehes on keelatud postitada enda kontaktandmeid (nimi, telefon, aadress jne). Me jälgime ja analüüsime pakkumisi, et vältida pettuseid ja reeglite rikkumisi.
Rikkumise puhul kasutajakonto blokeeritakse.

 

Teisi töid samas valdkonnas

Valdkonnas "Betoonitööd" on 5 aktiivset tööd

Betoonist platsi valamine väljas.

Asukoht: Harjumaa, Luige
Aega jäänud: 22h 18 min
Tehtud pakkumisi: 4

Betoonpõranda valu

Asukoht: Harjumaa, Jõelähtme
Aega jäänud: 2p 22h
Tehtud pakkumisi: 3

Vanemad teated:

Vaata kõiki

Sellel veebilehel kasutatakse küpsiseid. Kasutamist jätkates nõustute küpsiste kasutamisega.

Sulge
 
Minu pakkumine

Reeglid

Pakkumise kirjelduse väli on mõeldud pakkumise detailsemaks lahti kirjutamiseks. Pikema teksti mugavaks sisestamiseks klikkige kasti paremal ülaservas oleval ikoonil.
Pakkumist tehes on keelatud postitada enda kontaktandmeid (nimi, telefon, aadress jne). Me jälgime ja analüüsime pakkumisi, et vältida pettuseid ja reeglite rikkumisi.
Rikkumise puhul kasutajakonto blokeeritakse.