+ Lisa oma töö      

Otsid ehitajat "Fassaaditööd" valdkonnast?

Parima pakkumise ja teostaja leidmiseks lisa oma töö.

Eramaja välisseina krohvimine

ID 104292

907 vaatamist

Prindi

  • check Pakkumiste tegemine
    kuni 02.10.2024
  • check Võitja valik kuni
    09.10.2024
  • 3 Töö teostamine
    ja hinnang
Hanke lõpp: K, 2. oktoober, 2024
Maakond: Harjumaa
Linn: Tallinn
Tööde lõpp: Kokkuleppel
Ehitusmaterjalid: Töö tegija poolt
Soovin pakkumisi: Summa kogu projektile

Töö sisu

Töö sisu:
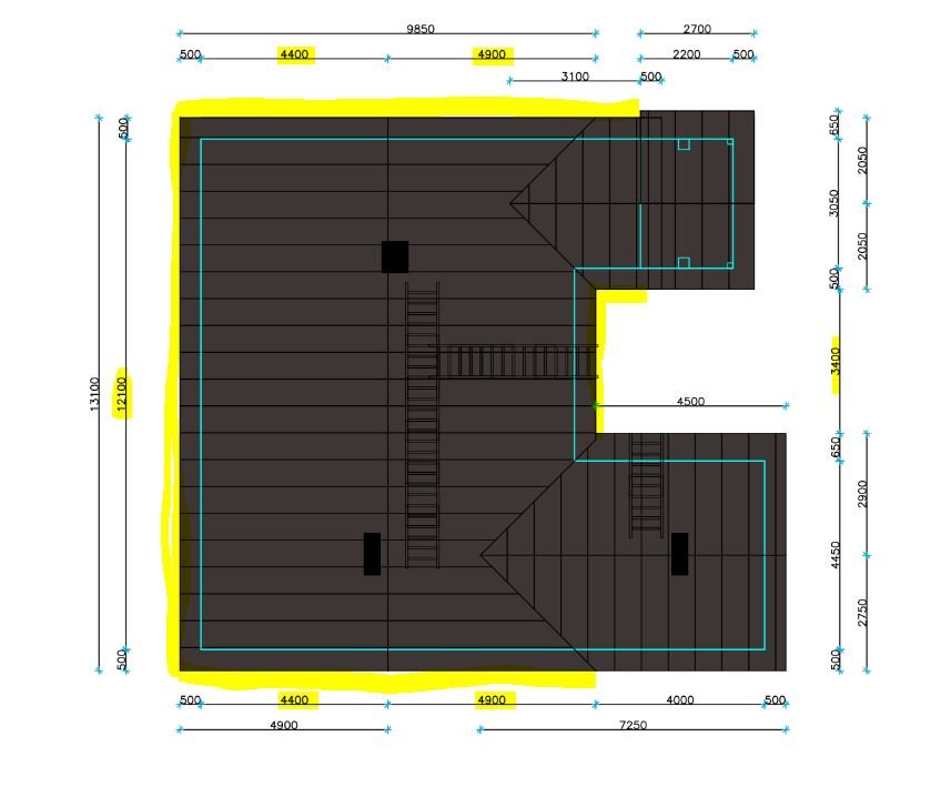
Eramu välisseina krohvimine ca 110 m² (aknad on va.).
Maja sissepääsu osa on osaliselt krohvitud selle krohvi parandus või uuendamine,
krohvida poolsilikaat ja tuhaplokist välissein+ akna paled:

krohvimstöödeks aluspinna ettevalmistus ja akende, tuulekasti, puitseina äärte katmine,
armeerida, tasandada, kruntida ja helehall toonitud struktuurkrohviga viimistlemine

Va)alikud tööd:

Krohvimise tõttu on vajadus välja vahetada ka aknaplekid 9 tk.
Nurkades kasutada nurgavõrke, et saaks sirged ja tugevad.
Maja seina küljes olevad ventilatsioonirestid 5 tk uuendada.
Akende keksmine suurus on 125x135 cm.
Kõrgeim krohvitav osa 3.35 m maapinnast.

Hetkel ise ei näe vajadust lisasoojustusele EPS näol.
Soov oleks näha helehall toonis krohvitud maja.

Pakkuja peab olema varasemalt teostanud samaväärseid töid.
Soov oleks kontol näha ka pilte varasematest töödest.
Kui päringus pole välja tootud selleks vajaminevat tööd siis pakkumises pöörata sellele tähelepanu koos kirjeldusega.Küll aga ei oska näha lahendust “vunamendi” piiriga, kas selle ääreni krohvimine (muutub tasaseks) või kuni maani.

Pildid, video ja failid

Hanke korraldaja: eraisik ID80036

Pakkumised

Pakkumisi kokku: 6

Ettevõte Summa Käibemaks Lisatud Vestlus
Kasutaja ikoon ID52170
Pakkuja profiil Väike nool paremale
11 250€ KM lisandub KM lisandub 23.09.2024 Vestlus (0)
Kasutaja ikoon ID83632
Pakkuja profiil Väike nool paremale
11 000€ KM lisandub KM lisandub 30.09.2024 Vestlus (0)
Kasutaja ikoon ID52293
Pakkuja profiil Väike nool paremale
6 500€ Sisaldab KM Sisaldab KM 02.10.2024 Vestlus (0)

Pakkumise kirjeldus:

Tere
Juhul kui soovite meid valida hanke võitjaks peaks eelnevalt kokku leppima makse tingimustes
Tänud

Kasutaja ikoon ID72585
Pakkuja profiil Väike nool paremale
8 400€ KM lisandub KM lisandub 02.10.2024 Vestlus (0)

Pakkumise kirjeldus:

Tere, pakkumine seisnab:
-Katmine.
-Seinte ja aknapaleti ettevalmistamine ja tasandamine.
- Armeringukiht +krohv sip 1.5mm.(tehnoloogia järgi)
-Uue akna veepleki paigaldamine.
-Puhastus ja prügi utiliseerimine.
Minu tehtud töö pildid näete minu profiilil.
Rohkem kui kahekümneaastane kogemus fassaadide soojustamisel ja renoveerimisel, kõrgeim ... Rohkem

Kasutaja ikoon ID59528
Pakkuja profiil Väike nool paremale
7 900€ KM lisandub KM lisandub 02.10.2024 Vestlus (0)

Pakkumise kirjeldus:

Tere,

Pakkumine tehtud vastavalt Hankes kirjeldatud töödele. Täpsema hinnakalkulatsiooni saame saata vestluses. Olemas pikaajaline kogemus fassaadide soojustamisel ja viimistlemises, vajadusel saame anda eelnevate klientide kontaktid !
Meie profiili alt näete meie poolt tehtud töid ja klientide poolt antud hinnanguid
Ettevōttel olemas MTR registre ... Rohkem

Kasutaja ikoon ID56408
Pakkuja profiil Väike nool paremale
5 500€ Ei ole KMKR Ei ole KMKR 02.10.2024 Vestlus (0)

Pakkumise kirjeldus:

Tere,

Pakkumine Teie hankele
Pildid näitan vestluses.

Lugupidamisega

Küsimused hanke korraldajale

Küsimus: private ID69305   19.09.2024 17:56
tere!!
kas soovid hinda ainult töö eest või koos materjalidega??
Tahaks ka ruutudes aknaid näha, need võtavad aega
lugupidumisega!

Teavita reeglite rikkumisest

Korraldaja vastus:
Hanke korraldaja ei ole küsimusele veel vastanud

Lisa küsimus

Lisa küsimus

Minu pakkumine

Reeglid

Pakkumise kirjelduse väli on mõeldud pakkumise detailsemaks lahti kirjutamiseks. Pikema teksti mugavaks sisestamiseks klikkige kasti paremal ülaservas oleval ikoonil.
Pakkumist tehes on keelatud postitada enda kontaktandmeid (nimi, telefon, aadress jne). Me jälgime ja analüüsime pakkumisi, et vältida pettuseid ja reeglite rikkumisi.
Rikkumise puhul kasutajakonto blokeeritakse.

 

Teisi töid samas valdkonnas

Valdkonnas "Fassaaditööd" on 14 aktiivset tööd

Fassaadi renoveerimine

Asukoht: Harjumaa, Viimsi
Aega jäänud: 1h 46 min
Tehtud pakkumisi: 3

Akende ja viilude parandus ja värvimine

Asukoht: Valgamaa, Valga
Aega jäänud: 1p 1h
Tehtud pakkumisi: 3

Vanemad teated:

Vaata kõiki

Sellel veebilehel kasutatakse küpsiseid. Kasutamist jätkates nõustute küpsiste kasutamisega.

Sulge
 
Minu pakkumine

Reeglid

Pakkumise kirjelduse väli on mõeldud pakkumise detailsemaks lahti kirjutamiseks. Pikema teksti mugavaks sisestamiseks klikkige kasti paremal ülaservas oleval ikoonil.
Pakkumist tehes on keelatud postitada enda kontaktandmeid (nimi, telefon, aadress jne). Me jälgime ja analüüsime pakkumisi, et vältida pettuseid ja reeglite rikkumisi.
Rikkumise puhul kasutajakonto blokeeritakse.