+ Lisa oma töö      

Otsid ehitajat "Üldehitus" valdkonnast?

Parima pakkumise ja teostaja leidmiseks lisa oma töö.

Ukse kandekonstruktsiooni vahetus ja vahelae ehitus

ID 103844

265 vaatamist

Prindi

  • check Pakkumiste tegemine
    kuni 17.09.2024
  • check Võitja valik kuni
    24.09.2024
  • 3 Töö teostamine
    ja hinnang
Hanke lõpp: T, 17. september, 2024
Maakond: Harjumaa
Linn: Tallinn
Tööde lõpp: Kokkuleppel
Ehitusmaterjalid: Töö tegija poolt
Soovin pakkumisi: Summa kogu projektile

Töö sisu

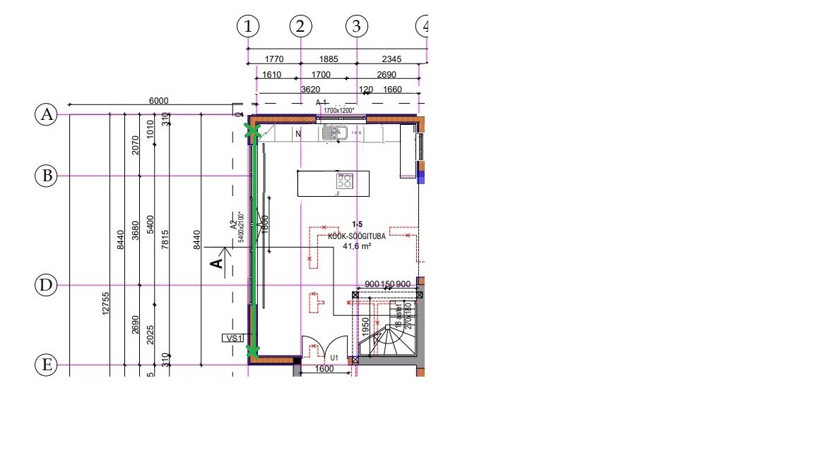
Terrassiukse ümber vaja vahetada olemasolev puudulik kandekonstruktsiooni ja ehitada katuseharja alla vahelagi.

1. Vahetada välja olemasolev terrassilükandukse ümber kandekonstruktsioon ehitustehniliselt korrektne toetuse vastu, nii horisontaal- kui vertikaaltalad ja vajadusel ukse alune pind.
Terrasssiukse mõõdud: 5,4m x 2,1m
Terrassiukse kohal olemasoleva tala mõõdud: 690x28x14 cm (uus tala min. 800x28x25 cm)
Olemas esmased tugevusarvutused vajaliku tala kandevõime kohta. Vajalik teha ka objekti mõõdistus kohapeal ja tööjoonised vahelae, uute kandekonstruktsioonide ja sõlmede kohta.

2.Tubadevaheline sein, vahelae ehitus, seinatoestuse (kaks kandeposti ja horisontaaltala, selleks võib kasutada p1 terrassiukse kohalt demonteeritavat tala).
Vahelae mõõdud: 4x 3,4m
Ehitada kahe toa vahele vahesein (laiusega ca3,8m); planeeritud seinasisene lükanduks (olemas): 1,66 x 2,1m

Pakkumises tuua tööde teostamisega seotud kulud(sh materjalide transporti, ehitusprahi utiliseerimist ja ehitusmasinate renti) ja võimalik teostamise aeg.

Soojustuse- ja elektritööd, siseviimistlus jm edasised tegevused võimalik eraldi kokku leppida.

Pildid, video ja failid

Hanke korraldaja: eraisik ID60721

Pakkumised

Pakkumisi kokku: 0

Küsimused hanke korraldajale

Küsimus: private ID43596   16.09.2024 10:39
Tere
Kahjuks selle aasta tööde graafik juba planeeritud. Kui kiiresti Teil on vaja valmis saada?

Teavita reeglite rikkumisest

Korraldaja vastus: 16.09.2024 10:54

Ajakava on paindlik, pakkuja võib märkida pakkumises võimaliku aja.

Teavita reeglite rikkumisest

Lisa küsimus

Lisa küsimus

Minu pakkumine

Reeglid

Pakkumise kirjelduse väli on mõeldud pakkumise detailsemaks lahti kirjutamiseks. Pikema teksti mugavaks sisestamiseks klikkige kasti paremal ülaservas oleval ikoonil.
Pakkumist tehes on keelatud postitada enda kontaktandmeid (nimi, telefon, aadress jne). Me jälgime ja analüüsime pakkumisi, et vältida pettuseid ja reeglite rikkumisi.
Rikkumise puhul kasutajakonto blokeeritakse.

 

Teisi töid samas valdkonnas

Valdkonnas "Üldehitus" on 27 aktiivset tööd

Maja värvimine

Asukoht: Harjumaa, Saue
Aega jäänud: 2p 11h
Tehtud pakkumisi: 5

Terassi õlitamine, 13,7 ruutu

Asukoht: Harjumaa, Saue
Aega jäänud: 5p 11h
Tehtud pakkumisi: 5

Vanemad teated:

Vaata kõiki

Sellel veebilehel kasutatakse küpsiseid. Kasutamist jätkates nõustute küpsiste kasutamisega.

Sulge
 
Minu pakkumine

Reeglid

Pakkumise kirjelduse väli on mõeldud pakkumise detailsemaks lahti kirjutamiseks. Pikema teksti mugavaks sisestamiseks klikkige kasti paremal ülaservas oleval ikoonil.
Pakkumist tehes on keelatud postitada enda kontaktandmeid (nimi, telefon, aadress jne). Me jälgime ja analüüsime pakkumisi, et vältida pettuseid ja reeglite rikkumisi.
Rikkumise puhul kasutajakonto blokeeritakse.