+ Lisa oma töö      

Otsid ehitajat "Küttesüsteemid" valdkonnast?

Parima pakkumise ja teostaja leidmiseks lisa oma töö.

Eramaja radikate torude paigaldamine ja ühendamine keskküttesüsteemiga

ID 103485

825 vaatamist

Prindi

  • check Pakkumiste tegemine
    kuni 03.10.2024
  • check Võitja valik kuni
    10.10.2024
  • 3 Töö teostamine
    ja hinnang
Hanke lõpp: N, 3. oktoober, 2024
Maakond: Harjumaa
Linn: Tallinn
Tööde lõpp: Kokkuleppel
Ehitusmaterjalid: Töö tellija poolt
Soovin pakkumisi: Summa kogu projektile

Töö sisu

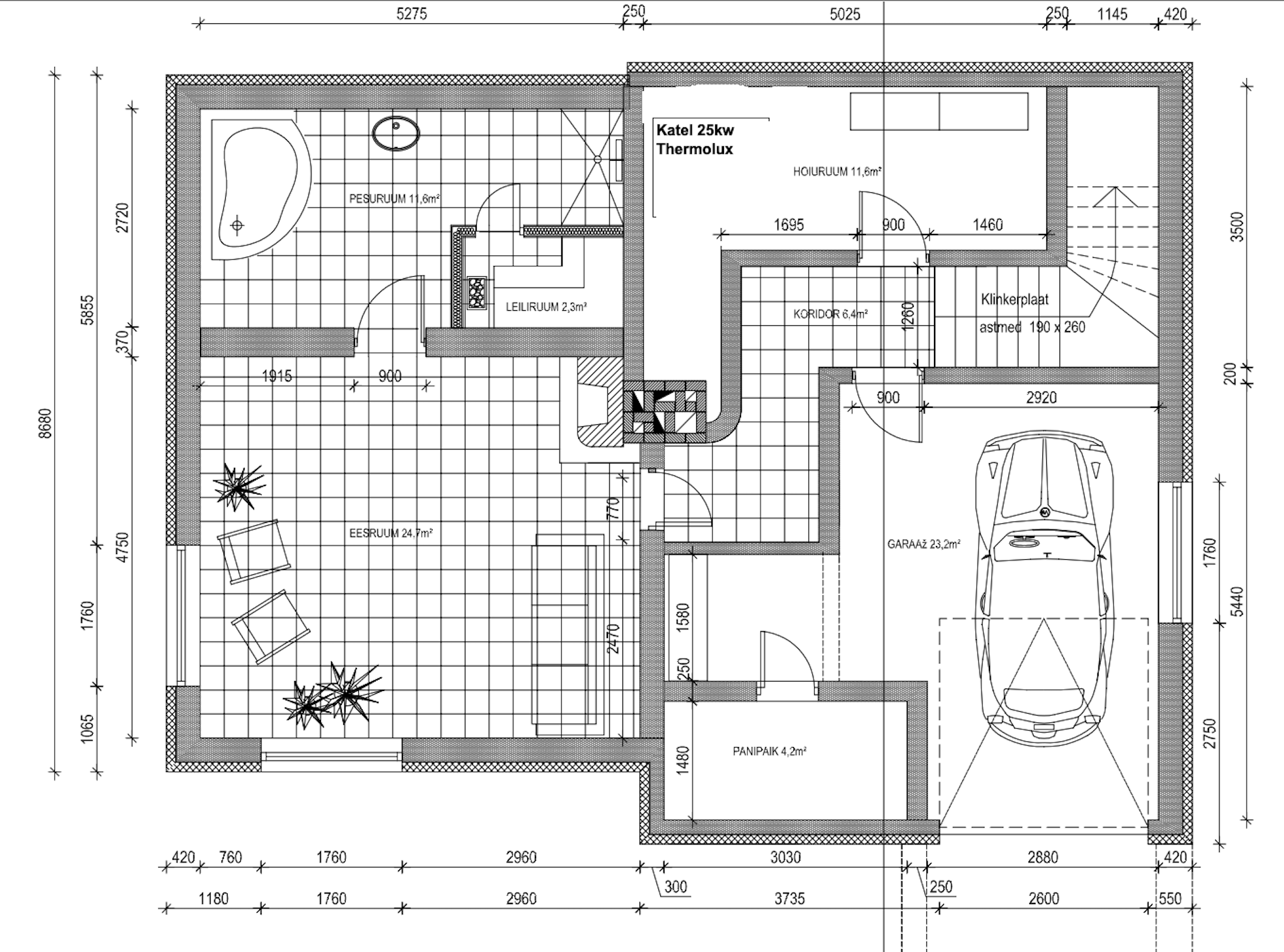
Paigaldatud keldrisse uus küttesüsteem pelletkatla Thermoflux Pelling 25, 25 kW näol. Esimesel korrusel on põrandaküte kollektoritega ja sellega korras, aga teisele korrusele oleks vaja keldris olevast küttesusteemist vedada radikate torud ja ühendada radikatega (radikad selleks hetkeks paigaldatud)

Kui võimalik eelistaks mitte radikaid vedada läbi esimese korruse elutoa lae puurides vaid ehk saaks ka trepipoolsest osase. Vahelaed betoonist.

Palun pakkuda sobilik torustike lahendus koos pumpade/kollektorite/ventiilide jms, et jagada radikatesse õigel temperatuuril vesi ja hind teostusele (materjalid kogume ise)

Pildid, video ja failid

Hanke korraldaja: eraisik ID44606

Pakkumised

Pakkumisi kokku: 2

Ettevõte Summa Käibemaks Lisatud Vestlus
Kasutaja ikoon ID71075
Pakkuja profiil Väike nool paremale
1 550€ KM lisandub KM lisandub 19.09.2024 Vestlus (0)
Kasutaja ikoon ID50618
Pakkuja profiil Väike nool paremale
1 550€ KM lisandub KM lisandub 02.10.2024 Vestlus (0)

Pakkumise kirjeldus:

Hind sisaldab ainult paigaldustöid.
Materjalid tulevad juurde.

Valida võitjaks ainult siis kui olete kindel tööde tellija, kui valite võitjaks, kuid töid ei telli, siis jääb teenustasu Teie kanda.

Küsimused hanke korraldajale

Hanke korraldajale ei ole veel küsimusi esitatud.

Lisa küsimus

Lisa küsimus

Minu pakkumine

Reeglid

Pakkumise kirjelduse väli on mõeldud pakkumise detailsemaks lahti kirjutamiseks. Pikema teksti mugavaks sisestamiseks klikkige kasti paremal ülaservas oleval ikoonil.
Pakkumist tehes on keelatud postitada enda kontaktandmeid (nimi, telefon, aadress jne). Me jälgime ja analüüsime pakkumisi, et vältida pettuseid ja reeglite rikkumisi.
Rikkumise puhul kasutajakonto blokeeritakse.

 

Teisi töid samas valdkonnas

Valdkonnas "Küttesüsteemid" on 2 aktiivset tööd

no-img Pilt puudub

Küttesüsteemi püstakute vahetus ja radiaatoritega ühendamine

Asukoht: Järvamaa, Paide
Aega jäänud: 3p 6h
Tehtud pakkumisi: 2

Cooper&Hunter Consol Inverter 18

Asukoht: Harjumaa, Tallinn
Aega jäänud: 6h 24 min
Tehtud pakkumisi: 1

Vanemad teated:

Vaata kõiki

Sellel veebilehel kasutatakse küpsiseid. Kasutamist jätkates nõustute küpsiste kasutamisega.

Sulge
 
Minu pakkumine

Reeglid

Pakkumise kirjelduse väli on mõeldud pakkumise detailsemaks lahti kirjutamiseks. Pikema teksti mugavaks sisestamiseks klikkige kasti paremal ülaservas oleval ikoonil.
Pakkumist tehes on keelatud postitada enda kontaktandmeid (nimi, telefon, aadress jne). Me jälgime ja analüüsime pakkumisi, et vältida pettuseid ja reeglite rikkumisi.
Rikkumise puhul kasutajakonto blokeeritakse.