+ Lisa oma töö      

Otsid ehitajat "Katusetööd" valdkonnast?

Parima pakkumise ja teostaja leidmiseks lisa oma töö.

Lamekatuse soojustamine

ID 103249

327 vaatamist

Prindi

  • check Pakkumiste tegemine
    kuni 03.09.2024
  • check Võitja valik kuni
    10.09.2024
  • 3 Töö teostamine
    ja hinnang
Hanke lõpp: T, 3. september, 2024
Maakond: Harjumaa
Muu asula: Luige
Tööde lõpp: Kokkuleppel
Ehitusmaterjalid: Töö tegija poolt
Soovin pakkumisi: Summa kogu projektile

Töö sisu

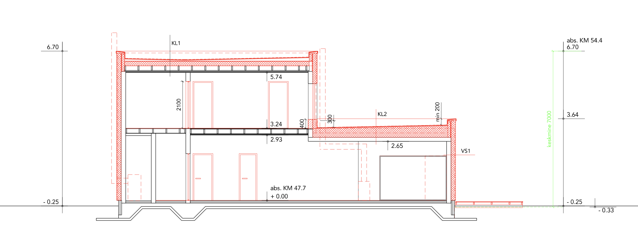
MÕÕTMED:
1. korruse katus 6m x 9m, kokku 54m2
2. korruse katus 8.5m x 9m, kokku 76.5m2
Kokku katuse pindala 132.5m2

SOOJUSTAMINE
1.korruse katusele lisada:
- 1 kiht SBSi
- 150mm PIR-plaat
- niiskuskindel vineer
- 2 kihti SBSi

2. korruse katusele lisada:
- 200mm EPS Silver 60
- tuulutussoontega villaplaat 30mm
- 2 kihti SBSi

PARAPET ja 12m2 KATUS
1. korruse katuse parapeti on vaja tõsta 250mm.
2. korruse katuse keskel on 12m2 ruumi ümber ebajalik parapet(vt. pildilt). See parapet ja 12m2 katus eemaldada, ehitada üles uus katus, see soojustada ja liita muu 2. korruse katusega.

Pildid, video ja failid

Hanke korraldaja: ettevõte ID55907

Pakkumised

Pakkumisi kokku: 1

Ettevõte Summa Käibemaks Lisatud Vestlus
Kasutaja ikoon ID84208
Pakkuja profiil Väike nool paremale
34 320€ KM lisandub KM lisandub 03.09.2024 Vestlus (0)

Pakkumise kirjeldus:

Tere
Meiepoolne esialgne pakkumine vastavalt hankes kirjeldatule.
Ennem töödega alustamist allkirjastatakse omavaheline leping ning pannakse paikka tööde teostamise aeg. Lisaküsimuste korral võite julgelt kirjutada.
Hinnale lisandub hange.ee teenustasu
Edukat hanget

Küsimused hanke korraldajale

Hanke korraldajale ei ole veel küsimusi esitatud.

Lisa küsimus

Lisa küsimus

Minu pakkumine

Reeglid

Pakkumise kirjelduse väli on mõeldud pakkumise detailsemaks lahti kirjutamiseks. Pikema teksti mugavaks sisestamiseks klikkige kasti paremal ülaservas oleval ikoonil.
Pakkumist tehes on keelatud postitada enda kontaktandmeid (nimi, telefon, aadress jne). Me jälgime ja analüüsime pakkumisi, et vältida pettuseid ja reeglite rikkumisi.
Rikkumise puhul kasutajakonto blokeeritakse.

 

Teisi töid samas valdkonnas

Valdkonnas "Katusetööd" on 9 aktiivset tööd

no-img Pilt puudub

Käidava katuse PVC 54m2

Asukoht: Harjumaa, Muraste
Aega jäänud: 4p 12h
Tehtud pakkumisi: 3

Garaaži katuse vahetamine

Asukoht: Harjumaa, Viimsi
Aega jäänud: 13p 12h
Tehtud pakkumisi: 2

Vanemad teated:

Vaata kõiki

Sellel veebilehel kasutatakse küpsiseid. Kasutamist jätkates nõustute küpsiste kasutamisega.

Sulge
 
Minu pakkumine

Reeglid

Pakkumise kirjelduse väli on mõeldud pakkumise detailsemaks lahti kirjutamiseks. Pikema teksti mugavaks sisestamiseks klikkige kasti paremal ülaservas oleval ikoonil.
Pakkumist tehes on keelatud postitada enda kontaktandmeid (nimi, telefon, aadress jne). Me jälgime ja analüüsime pakkumisi, et vältida pettuseid ja reeglite rikkumisi.
Rikkumise puhul kasutajakonto blokeeritakse.