+ Lisa oma töö      

Otsid ehitajat "Põrandatööd" valdkonnast?

Parima pakkumise ja teostaja leidmiseks lisa oma töö.

22m2 Betoonpõranda valamine koos ettevalmistustöödega.

ID 102347

354 vaatamist

Prindi

  • check Pakkumiste tegemine
    kuni 22.08.2024
  • check Võitja valik kuni
    29.08.2024
  • 3 Töö teostamine
    ja hinnang
Hanke lõpp: N, 22. august, 2024
Maakond: Harjumaa
Muu asula: Haabneeme
Tööde lõpp: Kokkuleppel
Ehitusmaterjalid: Töö tegija poolt
Soovin pakkumisi: Summa kogu projektile

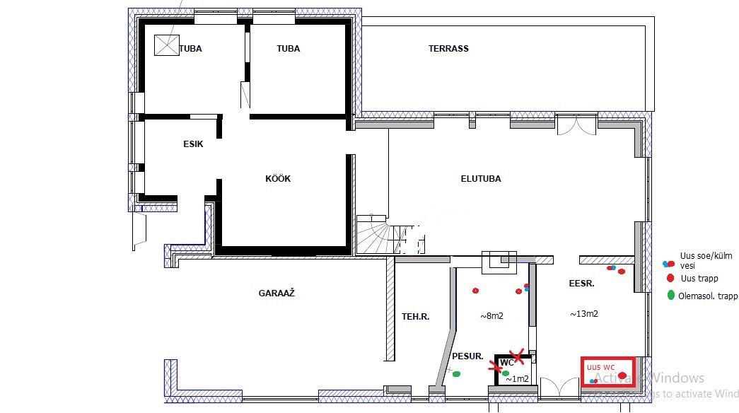
Töö sisu

Põrandatööd kahes ruumis EESR. ja PESUR kogupinnaga c.a 22m2


1) Vana põranda lammutus (pesuruumis plaaditud põrand, mille all osb ja eps, eesruumis tuulutatud puitpõrand) + olemasoleva wc seinade (puit) lammutus (utiliseerin ise)
2) Põrandate tasandamine liivaga (c.a 400mm )
3) Sanitaartööd- kanalisatsiooni pikendamine ja trappide lisamine (WC, Pesumasina äravool, Dushitrapp, Vannitrapp) + veetorud wc/pesumasin/vann
4) Põranda soojustamine 200eps
5) kile/ servalindi paigaldus, armatuur kanduritel + põrandasoojendus toru paigaldus
6) betooni valu + lihv

vastavalt teostaja ekspertiisile võib töösisu ka muuta

Pildid, video ja failid

Hanke korraldaja: eraisik ID55649

Pakkumised

Pakkumisi kokku: 0

Küsimused hanke korraldajale

Hanke korraldajale ei ole veel küsimusi esitatud.

Lisa küsimus

Lisa küsimus

Minu pakkumine

Reeglid

Pakkumise kirjelduse väli on mõeldud pakkumise detailsemaks lahti kirjutamiseks. Pikema teksti mugavaks sisestamiseks klikkige kasti paremal ülaservas oleval ikoonil.
Pakkumist tehes on keelatud postitada enda kontaktandmeid (nimi, telefon, aadress jne). Me jälgime ja analüüsime pakkumisi, et vältida pettuseid ja reeglite rikkumisi.
Rikkumise puhul kasutajakonto blokeeritakse.

 

Teisi töid samas valdkonnas

Valdkonnas "Põrandatööd" on 2 aktiivset tööd

Talumaja põrandate valamine/ehitus koos küttetorustiku paigaldusega

Asukoht: Raplamaa, Purila
Aega jäänud: 16p 10h
Tehtud pakkumisi: 2

Põrandakütte paigaldus ja põrandavalu (kips või betoon)

Asukoht: Saaremaa, Muhu vald
Aega jäänud: 10h 49 min
Tehtud pakkumisi: 1

Vanemad teated:

Vaata kõiki

Sellel veebilehel kasutatakse küpsiseid. Kasutamist jätkates nõustute küpsiste kasutamisega.

Sulge
 
Minu pakkumine

Reeglid

Pakkumise kirjelduse väli on mõeldud pakkumise detailsemaks lahti kirjutamiseks. Pikema teksti mugavaks sisestamiseks klikkige kasti paremal ülaservas oleval ikoonil.
Pakkumist tehes on keelatud postitada enda kontaktandmeid (nimi, telefon, aadress jne). Me jälgime ja analüüsime pakkumisi, et vältida pettuseid ja reeglite rikkumisi.
Rikkumise puhul kasutajakonto blokeeritakse.