+ Lisa oma töö      

Otsid ehitajat "Tänavakivide paigaldus" valdkonnast?

Parima pakkumise ja teostaja leidmiseks lisa oma töö.

Tänavakivi/unikivi paigaldus

ID 102209

477 vaatamist

Prindi

  • check Pakkumiste tegemine
    kuni 16.08.2024
  • check Võitja valik kuni
    23.08.2024
  • 3 Töö teostamine
    ja hinnang
Hanke lõpp: R, 16. august, 2024
Maakond: Harjumaa
Muu asula: Hüüru
Tööde lõpp: Kokkuleppel
Ehitusmaterjalid: Töö tegija poolt
Soovin pakkumisi: Summa kogu projektile

Töö sisu

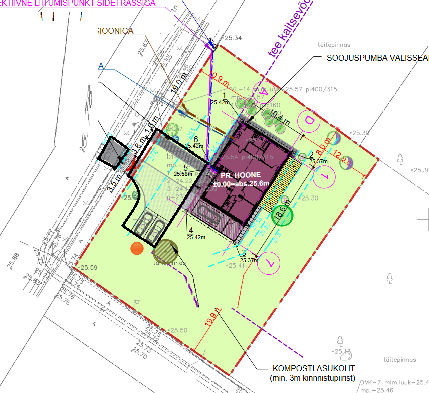
Tänavakivi paigaldus. Pinda u140-160m2

Märgitud joonisel musta joonega kohad kuhu kivi läheb. Maja esine osa ja siis kõnnitee ja tänava vaheline osa.

Kivi valik soodsama otsa kivi.

Stiililt Munga 60 või Nunna 60 kivi.

Pildid, video ja failid

Hanke korraldaja: eraisik ID77718

Pakkumised

Pakkumisi kokku: 3

Ettevõte Summa Käibemaks Lisatud Vestlus
Kasutaja ikoon ID79655
Pakkuja profiil Väike nool paremale
17 600€ KM lisandub KM lisandub 14.08.2024 Vestlus (0)

Pakkumise kirjeldus:

Hind sisaldab musta juti järgset äärekivipaigaldust betoonalusele. Hind sisaldab, kaeved, täited, sõelmed, kivi, paigaldust, liivatamist ja objektijärgset koristust.

Kasutaja ikoon ID63575
Pakkuja profiil Väike nool paremale
105 000€ Ei ole KMKR Ei ole KMKR 15.08.2024 Vestlus (0)

Pakkumise kirjeldus:

Kõik hinnas!!!

Kasutaja ikoon ID73095
Pakkuja profiil Väike nool paremale
12 200€ KM lisandub KM lisandub 16.08.2024 Vestlus (0)

Pakkumise kirjeldus:

tervitus kõik hinnas materjal, tehnika, töö n-ö võtmed kätte, ei vaja ettemaksu, kogemust maastiku ehitusel 15 aastat, garantii 3 aastat, edu hankel!

Küsimused hanke korraldajale

Küsimus: private ID73095   14.08.2024 11:19
tervist mitu jm tuleb äärekivi?

Teavita reeglite rikkumisest

Korraldaja vastus: 14.08.2024 13:39

Tere,
Majast teeni on u 12m. Platsi ümbrus ei ole mõõtnud, aga puusalt pakkuda u 40jm

Teavita reeglite rikkumisest

Lisa küsimus

Lisa küsimus

Minu pakkumine

Reeglid

Pakkumise kirjelduse väli on mõeldud pakkumise detailsemaks lahti kirjutamiseks. Pikema teksti mugavaks sisestamiseks klikkige kasti paremal ülaservas oleval ikoonil.
Pakkumist tehes on keelatud postitada enda kontaktandmeid (nimi, telefon, aadress jne). Me jälgime ja analüüsime pakkumisi, et vältida pettuseid ja reeglite rikkumisi.
Rikkumise puhul kasutajakonto blokeeritakse.

 

Teisi töid samas valdkonnas

Valdkonnas "Tänavakivide paigaldus" on 4 aktiivset tööd

Kõnnitee remont

Asukoht: Harjumaa
Aega jäänud: 4p 23h
Tehtud pakkumisi: 3

Tänavakivide paigaldus

Asukoht: Harjumaa, Tallinn
Aega jäänud: 4p 23h
Tehtud pakkumisi: 1

Vanemad teated:

Vaata kõiki

Sellel veebilehel kasutatakse küpsiseid. Kasutamist jätkates nõustute küpsiste kasutamisega.

Sulge
 
Minu pakkumine

Reeglid

Pakkumise kirjelduse väli on mõeldud pakkumise detailsemaks lahti kirjutamiseks. Pikema teksti mugavaks sisestamiseks klikkige kasti paremal ülaservas oleval ikoonil.
Pakkumist tehes on keelatud postitada enda kontaktandmeid (nimi, telefon, aadress jne). Me jälgime ja analüüsime pakkumisi, et vältida pettuseid ja reeglite rikkumisi.
Rikkumise puhul kasutajakonto blokeeritakse.