+ Lisa oma töö      

Otsid ehitajat "Arhitektibürood" valdkonnast?

Parima pakkumise ja teostaja leidmiseks lisa oma töö.

Hange on lõppenud!

Võitjaks osutus kasutaja ID 83528

Ehitusprojekti muudatuste joonestamine

ID 102140

402 vaatamist

Prindi

  • check Pakkumiste tegemine
    kuni 15.08.2024
  • check Võitja valik kuni
    22.08.2024
  • 3 Töö teostamine
    ja hinnang
Hanke lõpp: N, 15. august, 2024
Maakond: Harjumaa
Muu asula: Peetri
Tööde lõpp: Kokkuleppel
Ehitusmaterjalid: Töö tellija poolt
Soovin pakkumisi: Summa kogu projektile

Töö sisu

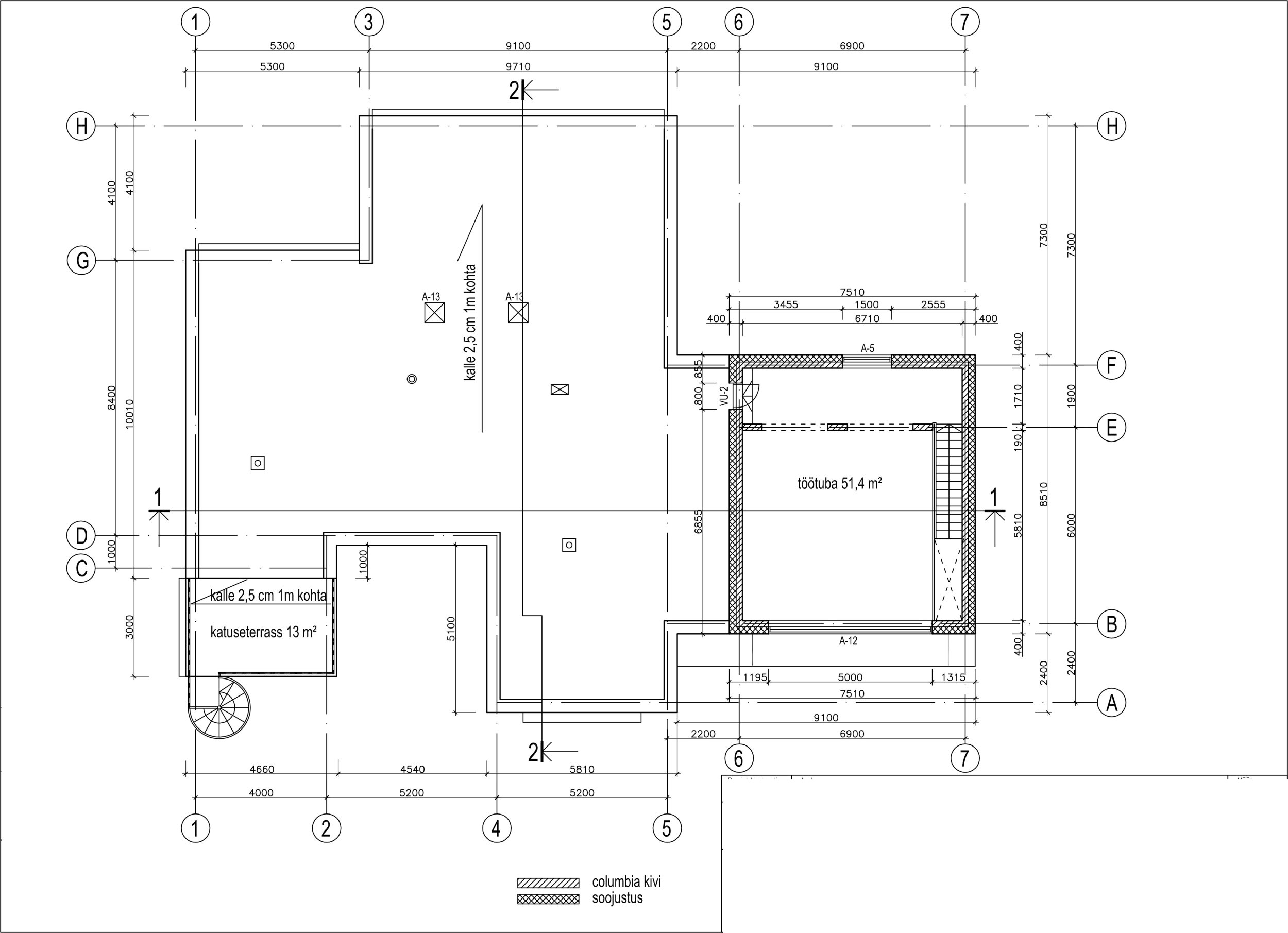
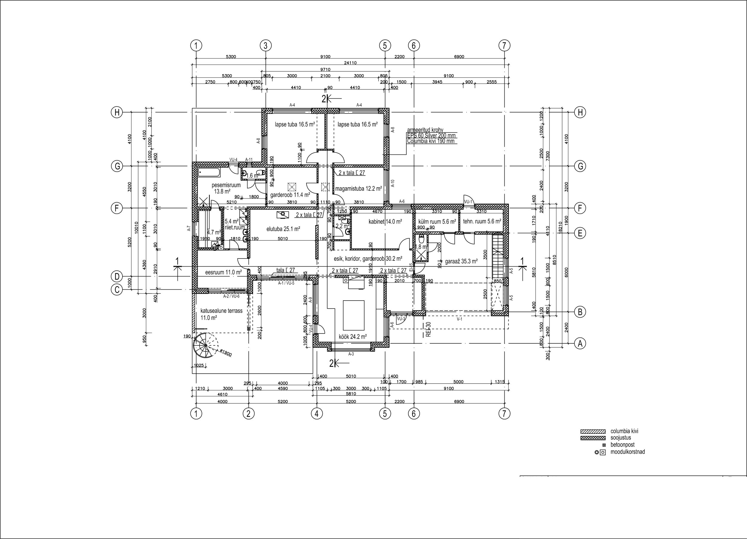
Projektis on vaja ümber joonestada seinte materjalid, muudetud ruumide asukohad ja suurused.
Lisada katusealune ja lõpuks uus seletuskiri.
Olemas vanad dwg joonised.

Pildid, video ja failid

Hanke korraldaja: eraisik ID54402

Pakkumised

Pakkumisi kokku: 5

Ettevõte Summa Käibemaks Lisatud Vestlus
Kasutaja ikoon ID77562
Pakkuja profiil Väike nool paremale
1 400€ Sisaldab KM Sisaldab KM 13.08.2024 Vestlus (0)

Pakkumise kirjeldus:

Hinnapakkumine sisaldab:

1) Kohapeal mõõtmist
2) Pädeva isiku poolt muudatusprojekti koostamist

Hinnapakkumine ei sisalda:

1) Ehitisregistri kandeid

Kasutaja ikoon ID83528
Pakkuja profiil Väike nool paremale
300€ Sisaldab KM Sisaldab KM 13.08.2024 Vestlus (0)

Pakkumise kirjeldus:

Jooniste muutmine, vajadusel uue joonise koostamine ja vormistamine

Kasutaja ikoon ID5128
Pakkuja profiil Väike nool paremale
900€ KM lisandub KM lisandub 13.08.2024 Vestlus (0)

Pakkumise kirjeldus:

hinnas valminud hoone ülesmõõtmisprojekti koostamine. Ehitusprojekti koostamine, kui see peaks vajalikuks osutuma, on suurem töö.

Kasutaja ikoon ID82852
Pakkuja profiil Väike nool paremale
850€ KM lisandub KM lisandub 13.08.2024 Vestlus (0)
Kasutaja ikoon ID46826
Pakkuja profiil Väike nool paremale
1 200€ Ei ole KMKR Ei ole KMKR 15.08.2024 Vestlus (0)

Pakkumise kirjeldus:

Muudatusprojekti koostamine.
Eeldame et ei ole vajalik uus geodeetiline alusplaan (ei sisaldu hinnas)

Küsimused oodatud

Küsimused hanke korraldajale

Hanke korraldajale ei ole veel küsimusi esitatud.

Lisa küsimus

Lisa küsimus

Minu pakkumine

Reeglid

Pakkumise kirjelduse väli on mõeldud pakkumise detailsemaks lahti kirjutamiseks. Pikema teksti mugavaks sisestamiseks klikkige kasti paremal ülaservas oleval ikoonil.
Pakkumist tehes on keelatud postitada enda kontaktandmeid (nimi, telefon, aadress jne). Me jälgime ja analüüsime pakkumisi, et vältida pettuseid ja reeglite rikkumisi.
Rikkumise puhul kasutajakonto blokeeritakse.

 

Vanemad teated:

Vaata kõiki

Sellel veebilehel kasutatakse küpsiseid. Kasutamist jätkates nõustute küpsiste kasutamisega.

Sulge
 
Minu pakkumine

Reeglid

Pakkumise kirjelduse väli on mõeldud pakkumise detailsemaks lahti kirjutamiseks. Pikema teksti mugavaks sisestamiseks klikkige kasti paremal ülaservas oleval ikoonil.
Pakkumist tehes on keelatud postitada enda kontaktandmeid (nimi, telefon, aadress jne). Me jälgime ja analüüsime pakkumisi, et vältida pettuseid ja reeglite rikkumisi.
Rikkumise puhul kasutajakonto blokeeritakse.