+ Lisa oma töö      

Otsid ehitajat "Eritellimusmööbel" valdkonnast?

Parima pakkumise ja teostaja leidmiseks lisa oma töö.

Hange on lõppenud!

Võitjaks osutus kasutaja ID 71474

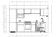
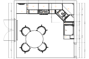
Ikea köögi paigaldus

ID 101959

396 vaatamist

Prindi

  • check Pakkumiste tegemine
    kuni 14.08.2024
  • check Võitja valik kuni
    21.08.2024
  • 3 Töö teostamine
    ja hinnang
Hanke lõpp: K, 14. august, 2024
Maakond: Põlvamaa
Muu asula: Vastse-Kuuste
Tööde lõpp: Kokkuleppel
Ehitusmaterjalid: Töö tellija poolt
Soovin pakkumisi: Summa kogu projektile

Töö sisu

Kinnitusvahendid ja silikoonid peaks töötegijal endal olema. Korter on nõukaaegne ja seinad ei pruugi täiesti sirged olla.

Pildid, video ja failid

Hanke korraldaja: ettevõte ID24792

Pakkumised

Pakkumisi kokku: 4

Ettevõte Summa Käibemaks Lisatud Vestlus
Kasutaja ikoon ID71474
Pakkuja profiil Väike nool paremale
860€ Sisaldab KM Sisaldab KM 09.08.2024 Vestlus (6)

Pakkumise kirjeldus:

Tere

Pakkumine sisaldab ikea köögi kokkupanekut, paigaldust ja kõigi vajalike ühenduste teostamist.

Kogemustega töömees ja tulemus alati kvaliteetne!

Parimatega
Mihkel

Kasutaja ikoon ID30805
Pakkuja profiil Väike nool paremale
1 200€ Ei ole KMKR Ei ole KMKR 09.08.2024 Vestlus (0)

Pakkumise kirjeldus:

Köögi paigaldus.
Maksetingimused kliendile:
1)40% tasumine koos hanke arve tasumisega. 3 päeva jooksul peale võitjaks valimist.
2)peale tööde lõppu arve 60%
Papi ja muu sodi utiliseerimist ei arvestanud.

Kasutaja ikoon ID83737
Pakkuja profiil Väike nool paremale
650€ KM lisandub KM lisandub 10.08.2024 Vestlus (0)
Kasutaja ikoon ID75432
Pakkuja profiil Väike nool paremale
700€ Ei ole KMKR Ei ole KMKR 10.08.2024 Vestlus (2)

Pakkumise kirjeldus:

Tervitus.
Hins sisaldab:Paigaldust,san ühendusi jne.

Töödele garantii.

Parimat.

Küsimused hanke korraldajale

Hanke korraldajale ei ole veel küsimusi esitatud.

Lisa küsimus

Lisa küsimus

Minu pakkumine

Reeglid

Pakkumise kirjelduse väli on mõeldud pakkumise detailsemaks lahti kirjutamiseks. Pikema teksti mugavaks sisestamiseks klikkige kasti paremal ülaservas oleval ikoonil.
Pakkumist tehes on keelatud postitada enda kontaktandmeid (nimi, telefon, aadress jne). Me jälgime ja analüüsime pakkumisi, et vältida pettuseid ja reeglite rikkumisi.
Rikkumise puhul kasutajakonto blokeeritakse.

 

Vanemad teated:

Vaata kõiki

Sellel veebilehel kasutatakse küpsiseid. Kasutamist jätkates nõustute küpsiste kasutamisega.

Sulge
 
Minu pakkumine

Reeglid

Pakkumise kirjelduse väli on mõeldud pakkumise detailsemaks lahti kirjutamiseks. Pikema teksti mugavaks sisestamiseks klikkige kasti paremal ülaservas oleval ikoonil.
Pakkumist tehes on keelatud postitada enda kontaktandmeid (nimi, telefon, aadress jne). Me jälgime ja analüüsime pakkumisi, et vältida pettuseid ja reeglite rikkumisi.
Rikkumise puhul kasutajakonto blokeeritakse.