+ Lisa oma töö      

Otsid ehitajat "Fassaaditööd" valdkonnast?

Parima pakkumise ja teostaja leidmiseks lisa oma töö.

Fassaaditööd

ID 100855

342 vaatamist

Prindi

  • check Pakkumiste tegemine
    kuni 26.07.2024
  • check Võitja valik kuni
    02.08.2024
  • 3 Töö teostamine
    ja hinnang
Hanke lõpp: R, 26. juuli, 2024
Maakond: Harjumaa
Linn: Tallinn
Tööde lõpp: Kokkuleppel
Ehitusmaterjalid: Töö tegija poolt
Soovin pakkumisi: Summa kogu projektile

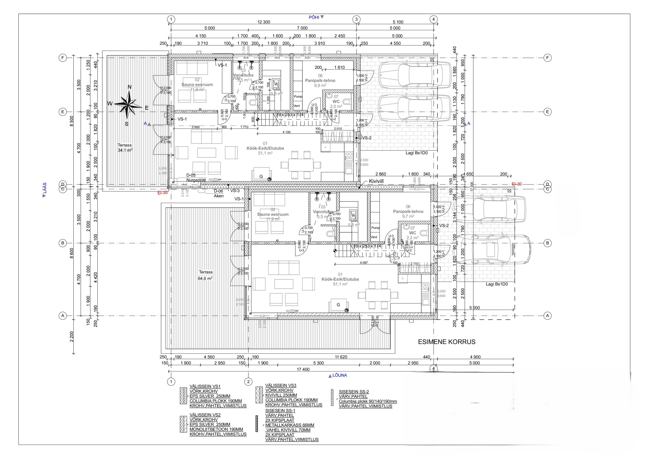
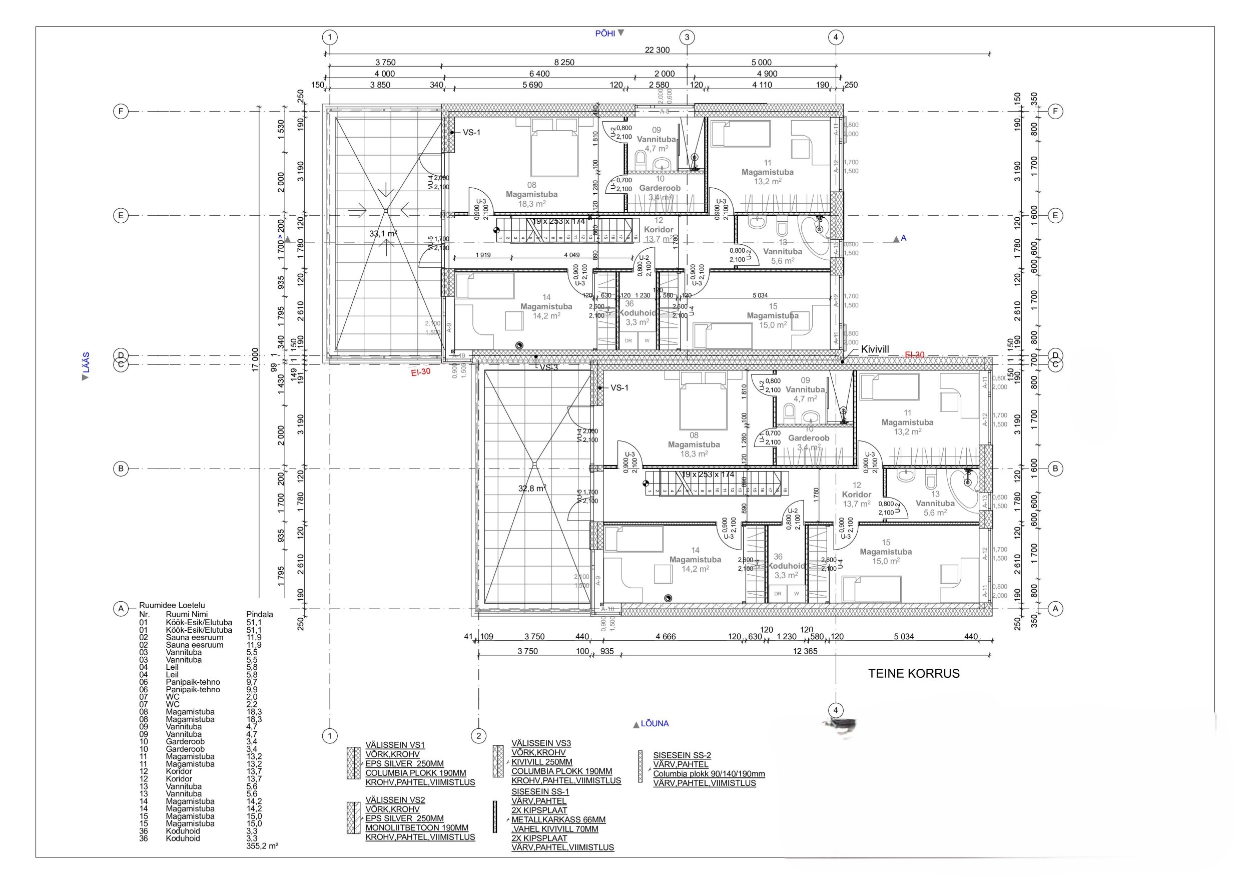
Töö sisu

Palun pakkumist paariselamu fassaaditöödeks. Fassaadipesu, mõningane kohtparandus, kaitsetöötlus, värvimine. Krohviks Caparol ThermoSan. Hind "võtmed kätte"

Pildid, video ja failid

Hanke korraldaja: eraisik ID83862

Pakkumised

Pakkumisi kokku: 3

Ettevõte Summa Käibemaks Lisatud Vestlus
Kasutaja ikoon ID82678
Pakkuja profiil Väike nool paremale
2 000€ Sisaldab KM Sisaldab KM 24.07.2024 Vestlus (5)

Pakkumise kirjeldus:

Tere.Pesemine,varvimine ca 2000 eur uks osa koos meie materjaliga.Vaikesed parandused hinna sees.

Kasutaja ikoon ID81744
Pakkuja profiil Väike nool paremale
6 000€ Sisaldab KM Sisaldab KM 24.07.2024 Vestlus (0)

Pakkumise kirjeldus:

Hind sisaldab:
1.Fassaadi pesemine
2.Kruntimine
3.Krohviparandused
4.Värvimine
5.akende tihendamine kilega, et kõik jääks puhtaks
6.prügi kõrvaldamine
7.tõustuk
8.kogu materjal meie poolt, sinult ainult Värv,krohv

Kasutaja ikoon ID52293
Pakkuja profiil Väike nool paremale
26 000€ Sisaldab KM Sisaldab KM 26.07.2024 Vestlus (0)

Küsimused hanke korraldajale

Küsimus: private ID81744   23.07.2024 22:15
Tere kui palju m2?

Teavita reeglite rikkumisest

Korraldaja vastus: 24.07.2024 08:54

Tere. Kahjuks ei oska öelda. Projekt koos mõõtudega on lisatud.

Teavita reeglite rikkumisest

Lisa küsimus

Lisa küsimus

Minu pakkumine

Reeglid

Pakkumise kirjelduse väli on mõeldud pakkumise detailsemaks lahti kirjutamiseks. Pikema teksti mugavaks sisestamiseks klikkige kasti paremal ülaservas oleval ikoonil.
Pakkumist tehes on keelatud postitada enda kontaktandmeid (nimi, telefon, aadress jne). Me jälgime ja analüüsime pakkumisi, et vältida pettuseid ja reeglite rikkumisi.
Rikkumise puhul kasutajakonto blokeeritakse.

 

Teisi töid samas valdkonnas

Valdkonnas "Fassaaditööd" on 12 aktiivset tööd

Akende ja viilude parandus ja värvimine

Asukoht: Valgamaa, Valga
Aega jäänud: 21h 40 min
Tehtud pakkumisi: 3

Eramaja vintskapide laudise paigaldus

Asukoht: Pärnumaa, Pärnu-Jaagupi
Aega jäänud: 9p 21h
Tehtud pakkumisi: 2

Vanemad teated:

Vaata kõiki

Sellel veebilehel kasutatakse küpsiseid. Kasutamist jätkates nõustute küpsiste kasutamisega.

Sulge
 
Minu pakkumine

Reeglid

Pakkumise kirjelduse väli on mõeldud pakkumise detailsemaks lahti kirjutamiseks. Pikema teksti mugavaks sisestamiseks klikkige kasti paremal ülaservas oleval ikoonil.
Pakkumist tehes on keelatud postitada enda kontaktandmeid (nimi, telefon, aadress jne). Me jälgime ja analüüsime pakkumisi, et vältida pettuseid ja reeglite rikkumisi.
Rikkumise puhul kasutajakonto blokeeritakse.