+ Lisa oma töö      

Otsid ehitajat "Aia ehitus" valdkonnast?

Parima pakkumise ja teostaja leidmiseks lisa oma töö.

2D paneelidest piirdeaed

ID 100631

394 vaatamist

Prindi

  • check Pakkumiste tegemine
    kuni 22.07.2024
  • check Võitja valik kuni
    29.07.2024
  • 3 Töö teostamine
    ja hinnang
Hanke lõpp: E, 22. juuli, 2024
Maakond: Harjumaa
Muu asula: Viimsi
Tööde lõpp: Kokkuleppel
Ehitusmaterjalid: Töö tegija poolt
Soovin pakkumisi: Summa kogu projektile

Töö sisu

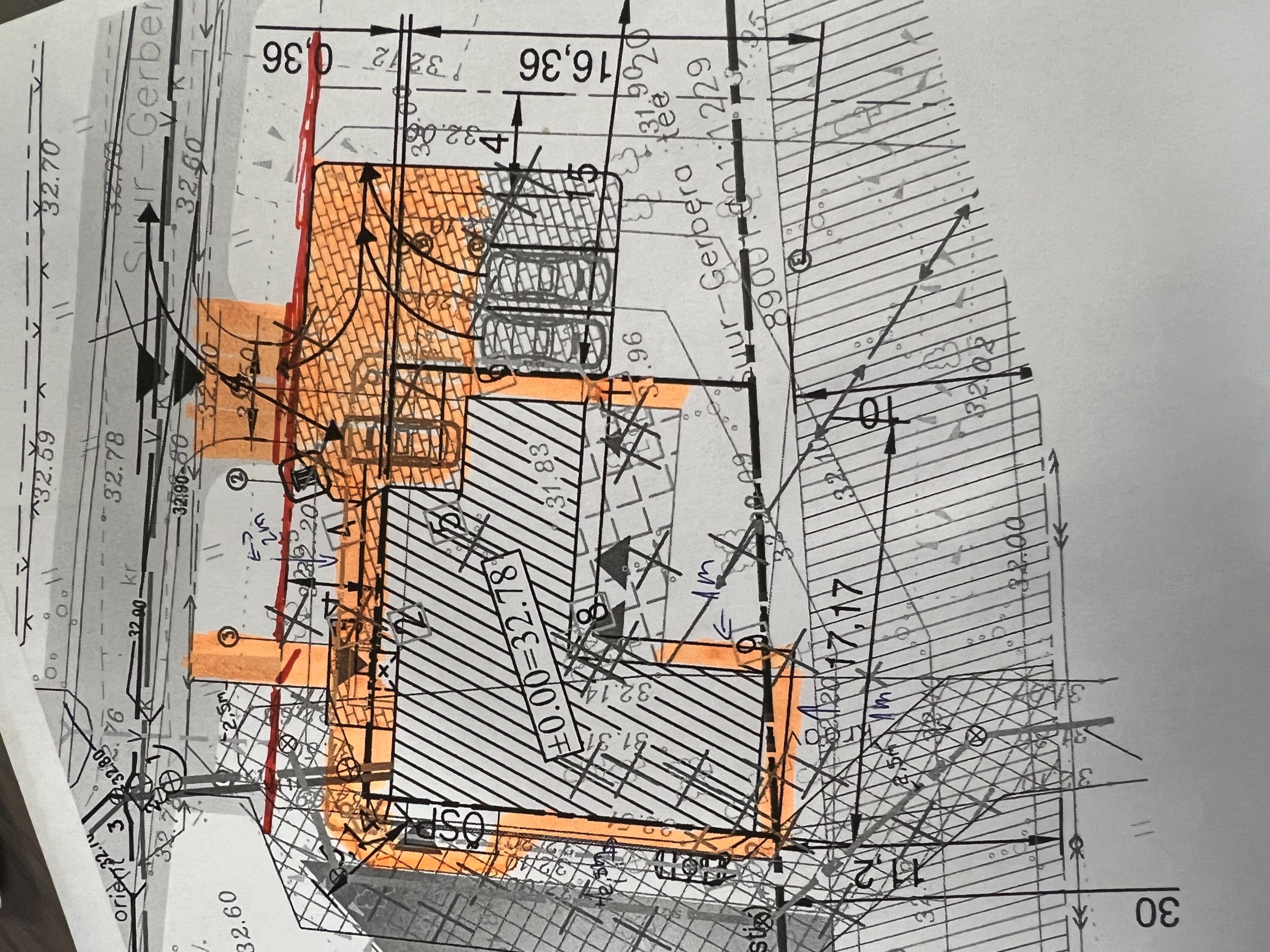
Sooviks hinnapakkumist 2D paneelaiale kogupikkusega 32meetrit, seal sees 5meetrine liugvärav koos automaatikaga ja jalgvärav koos elektrilukuga, lisaks nö. integreeritud väravapost koos fono ja postkastiga.
Värvus must ja kõrgus ca 1,3 meetrit. Kaabeldus veetud.
Aed ja väravad märgitud punasega joonisele.

Pildid, video ja failid

Hanke korraldaja: eraisik ID67468

Pakkumised

Pakkumisi kokku: 2

Ettevõte Summa Käibemaks Lisatud Vestlus
Kasutaja ikoon ID79878
Pakkuja profiil Väike nool paremale
4 900€ Ei ole KMKR Ei ole KMKR 20.07.2024 Vestlus (8)

Pakkumise kirjeldus:

Tere, hinnapakkumine sisaldab

1. Liugväravad 5000 mm, Zn + RAL
Liugvärava furnituuri
komplektid
Rullplokid - 2tk
Rööbas 70x60x3,5 tsingitud
Lõpurull - 1 tk
Värava vastuvõtja - 1 tk
Otsakate - 1 tk

2. LIUGVÄRAVA AUTOMAATIKA
SOMMER
Komplektis ajam, hammaslatt 5meetrit, fotosilmad ja distantspult
Temperatuurivahemik: –30 ° C kuni + ... Rohkem

Kasutaja ikoon ID83634
Pakkuja profiil Väike nool paremale
4 900€ Ei ole KMKR Ei ole KMKR 22.07.2024 Vestlus (5)

Pakkumise kirjeldus:

Saan edastada oma teise hanke konto tagasiside

Küsimused hanke korraldajale

Hanke korraldajale ei ole veel küsimusi esitatud.

Lisa küsimus

Lisa küsimus

Minu pakkumine

Reeglid

Pakkumise kirjelduse väli on mõeldud pakkumise detailsemaks lahti kirjutamiseks. Pikema teksti mugavaks sisestamiseks klikkige kasti paremal ülaservas oleval ikoonil.
Pakkumist tehes on keelatud postitada enda kontaktandmeid (nimi, telefon, aadress jne). Me jälgime ja analüüsime pakkumisi, et vältida pettuseid ja reeglite rikkumisi.
Rikkumise puhul kasutajakonto blokeeritakse.

 

Teisi töid samas valdkonnas

Valdkonnas "Aia ehitus" on 18 aktiivset tööd

Tänavakivi puhastus

Asukoht: Harjumaa, Tallinn
Aega jäänud: 10h 8 min
Tehtud pakkumisi: 8

no-img Pilt puudub

Piirdeaia postide paigaldus koos paneelidega

Asukoht: Tartumaa
Aega jäänud: 1p 10h
Tehtud pakkumisi: 5

Vanemad teated:

Vaata kõiki

Sellel veebilehel kasutatakse küpsiseid. Kasutamist jätkates nõustute küpsiste kasutamisega.

Sulge
 
Minu pakkumine

Reeglid

Pakkumise kirjelduse väli on mõeldud pakkumise detailsemaks lahti kirjutamiseks. Pikema teksti mugavaks sisestamiseks klikkige kasti paremal ülaservas oleval ikoonil.
Pakkumist tehes on keelatud postitada enda kontaktandmeid (nimi, telefon, aadress jne). Me jälgime ja analüüsime pakkumisi, et vältida pettuseid ja reeglite rikkumisi.
Rikkumise puhul kasutajakonto blokeeritakse.