+ Lisa oma töö      

Otsid ehitajat "Betoonitööd" valdkonnast?

Parima pakkumise ja teostaja leidmiseks lisa oma töö.

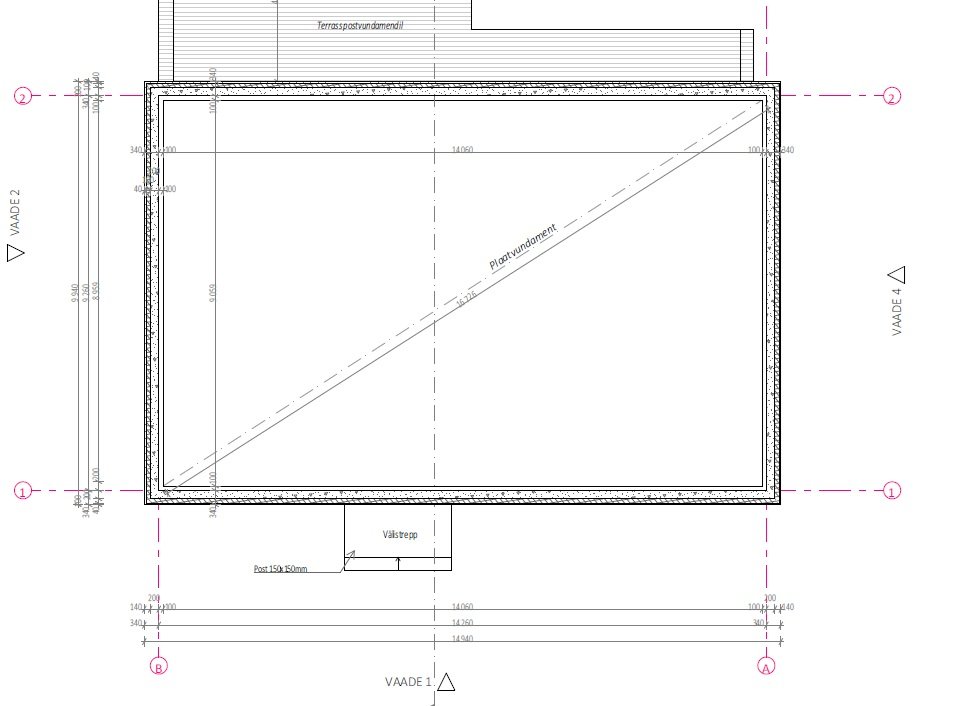
Plaatvundamendi valu

ID 100099

415 vaatamist

Prindi

  • check Pakkumiste tegemine
    kuni 17.07.2024
  • check Võitja valik kuni
    24.07.2024
  • 3 Töö teostamine
    ja hinnang
Hanke lõpp: K, 17. juuli, 2024
Maakond: Tartumaa
Muu asula: Nõo
Tööde lõpp: Kokkuleppel
Ehitusmaterjalid: Töö tegija poolt
Soovin pakkumisi: Summa kogu projektile

Töö sisu

Kõik ettevalmistused betoonitöödeks tehtud.

Pildid, video ja failid

Hanke korraldaja: eraisik ID83538

Pakkumised

Pakkumisi kokku: 3

Ettevõte Summa Käibemaks Lisatud Vestlus
Kasutaja ikoon ID68473
Pakkuja profiil Väike nool paremale
2 980€ KM lisandub KM lisandub 11.07.2024 Vestlus (0)

Pakkumise kirjeldus:

Tere

Pakkumine sisaldab

1.) Plaatvundamendi valamist ja lihvimist kopteriga (kattealune põrand )
2.)Betooni 17 m3 betoonimark C25/30, XC2 , S4, dmax 16 paekild
(betoonikoguse suurenemisel või vähenemisel arvestatakse betooni m3 hinnaks 125 eur +km

Maksmine arve alusel !
Parimate soovidega Indrek

Kasutaja ikoon ID67766
Pakkuja profiil Väike nool paremale
1 200€ Ei ole KMKR Ei ole KMKR 14.07.2024 Vestlus (0)

Pakkumise kirjeldus:

Hind sisaldab plaatvundamendi valamist betooniga 25/30 s4 paekild ja põranda lihvimist kopteri pind .Betooni kogus ja hind selgub kui oleme objekti ise laseriga üle kontrollinud .Parimat soovides

Kasutaja ikoon ID66447
Pakkuja profiil Väike nool paremale
2 970€ KM lisandub KM lisandub 14.07.2024 Vestlus (0)

Pakkumise kirjeldus:

Tere!
Betoon c25/30 ~16m3(kui osutun mina võitjaks siis tulen mõõdistan pöördlaseriga eelnevalt üle)
Betooni silumine+kopterdus
Betooni järelhooldus
Saab ilma käibemaksuta ka
Lisaküsimustele vastan sõnumites
Kui osutun võitjaks saan betoonitehases masinad broneerida

Edukat hanget!

Küsimused hanke korraldajale

Küsimus: private ID68473   10.07.2024 23:25
Tere

1.)Kas projektis on toodud välja ka betoonimark (reeglina on plaadid c25/30,xc2)
2.)Kas põrandale läheb terves ulatuses hiljem kateematerjal ka peale?
3.)perimeetri sügavus ja laius?

Parimate soovidega Indrek

Teavita reeglite rikkumisest

Korraldaja vastus: 11.07.2024 00:19

Tere,

1.) Projektis seda välja toodud ei ole.
2.)Mida peate täpsemalt silmas kattematerjali all? (Võib-olla rumal küsimus, kuna ise antud valdkonnaga pole kokku puutunud).
3.) Perimeetri sügavus 20cm ja laius 27cm

Teavita reeglite rikkumisest

Küsimus: private ID68473   11.07.2024 20:46
Tere

Kattematerjali all pean silmas näiteks parketti ?

Teavita reeglite rikkumisest

Korraldaja vastus: 11.07.2024 21:48

Tere,

Jah, parkett läheb hiljem peale.

Teavita reeglite rikkumisest

Küsimus: private ID67766   14.07.2024 09:35
Tere .Kui palju on arvestatud plaadi paksuseks. Kas äärtesse tuleb arvestada rohkem betooni kogust .Parimat soovides

Teavita reeglite rikkumisest

Korraldaja vastus:
Hanke korraldaja ei ole küsimusele veel vastanud

Lisa küsimus

Lisa küsimus

Minu pakkumine

Reeglid

Pakkumise kirjelduse väli on mõeldud pakkumise detailsemaks lahti kirjutamiseks. Pikema teksti mugavaks sisestamiseks klikkige kasti paremal ülaservas oleval ikoonil.
Pakkumist tehes on keelatud postitada enda kontaktandmeid (nimi, telefon, aadress jne). Me jälgime ja analüüsime pakkumisi, et vältida pettuseid ja reeglite rikkumisi.
Rikkumise puhul kasutajakonto blokeeritakse.

 

Teisi töid samas valdkonnas

Valdkonnas "Betoonitööd" on 5 aktiivset tööd

Betoonist platsi valamine väljas.

Asukoht: Harjumaa, Luige
Aega jäänud: 21h 15 min
Tehtud pakkumisi: 4

Betoonpõranda valu

Asukoht: Harjumaa, Jõelähtme
Aega jäänud: 2p 21h
Tehtud pakkumisi: 3

Vanemad teated:

Vaata kõiki

Sellel veebilehel kasutatakse küpsiseid. Kasutamist jätkates nõustute küpsiste kasutamisega.

Sulge
 
Minu pakkumine

Reeglid

Pakkumise kirjelduse väli on mõeldud pakkumise detailsemaks lahti kirjutamiseks. Pikema teksti mugavaks sisestamiseks klikkige kasti paremal ülaservas oleval ikoonil.
Pakkumist tehes on keelatud postitada enda kontaktandmeid (nimi, telefon, aadress jne). Me jälgime ja analüüsime pakkumisi, et vältida pettuseid ja reeglite rikkumisi.
Rikkumise puhul kasutajakonto blokeeritakse.