+ Lisa oma töö      

Otsid ehitajat "Siseviimistlustööd" valdkonnast?

Parima pakkumise ja teostaja leidmiseks lisa oma töö.

Maalritööd

ID 100004

437 vaatamist

Prindi

  • check Pakkumiste tegemine
    kuni 08.08.2024
  • check Võitja valik kuni
    15.08.2024
  • 3 Töö teostamine
    ja hinnang
Hanke lõpp: N, 8. august, 2024
Maakond: Harjumaa
Linn: Maardu
Tööde lõpp: E, 07. oktoober, 2024
Ehitusmaterjalid: Töö tellija poolt
Soovin pakkumisi: Summa kogu projektile

Töö sisu

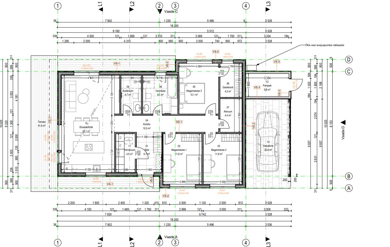
Soovin hinnapakkumist eramu maalritöödele (Muuga, Maardu)
- tegemist 1-e kordse 106m2 eramuga, lae kõrgus 2.7m
- seinad ja laed kipsist
- siseuksed on paigaldamata

- Objektil olemas elekter + vesi
-Hankele lisatud põhiplaan

Hinda soovin : ainult töö hind
Laed ja seinad.

- Vuugilindi paigaldus
- lauspahteldus vajadusel 2 korda
- tolmuvaba lihvimine
- kruntimine
-2 kihti põhivärvi
- metalli nurkade paigaldus
- nurkade akrüülimine
- akna- ja uksepalede viimistlus
- koristamine ja prügi utiliseerimine

Tööde algus oktoobri algus 2024

Pildid, video ja failid

Hanke korraldaja: eraisik ID81908

Pakkumised

Pakkumisi kokku: 6

Ettevõte Summa Käibemaks Lisatud Vestlus
Kasutaja ikoon ID76974
Pakkuja profiil Väike nool paremale
5 100€ Ei ole KMKR Ei ole KMKR 10.07.2024 Vestlus (0)
Kasutaja ikoon ID65879
Pakkuja profiil Väike nool paremale
5 565€ Ei ole KMKR Ei ole KMKR 27.07.2024 Vestlus (0)

Pakkumise kirjeldus:

Hinnapakkumine sisaldab: Vuugilintide,tugevdusnurkade paigaldus,lauspahteldus 2x, kruntimine ja värvimine 2x.Töid teostab pika kogemusega maaler.(Kogemust 15+ aastat).Töödele garantii 2 aastat.Tellija sõlmitakse leping.Tööde eest tasumine toimub kahes osas arvete alusel.Hinnapakkumine on tehtud umbkaudne.Täpsema hinna saab öelda peale objekti ülemà ... Rohkem

Kasutaja ikoon ID70928
Pakkuja profiil Väike nool paremale
4 000€ KM lisandub KM lisandub 30.07.2024 Vestlus (0)

Pakkumise kirjeldus:

Tere
Pakkumine on tehtud 200m2 peale. Täpsemad m2 saab kohapeal üle mõõtes. Töö hind 20€ m2 + km. Hind sisaldab vuugilintide ja alumiinium tugevdusnurkkade liimimist, vuukide üle pahteldamist, lauspahteldus 2 korda, lihvimine masinaga millel tolmuimeja järgi, kruntimine, akrüülid, pinnavärv 2 korda. Aknapõse viimistlus 12€ jm + km. Hinnad ... Rohkem

Kasutaja ikoon ID82479
Pakkuja profiil Väike nool paremale
4 500€ Ei ole KMKR Ei ole KMKR 02.08.2024 Vestlus (0)
Kasutaja ikoon ID79882
Pakkuja profiil Väike nool paremale
8 000€ Ei ole KMKR Ei ole KMKR 08.08.2024 Vestlus (0)

Pakkumise kirjeldus:

Leping,kvaliteet,garantii 5aastat,ettemaksu ei soovi,km.ei lisandu

Kasutaja ikoon ID8633
Pakkuja profiil Väike nool paremale
7 500€ KM lisandub KM lisandub 08.08.2024 Vestlus (0)

Küsimused hanke korraldajale

Küsimus: private ID65879   10.07.2024 07:20
Tere.
Mida täpsemalt tähendab elutoas/köögis avatud lagi?Kas tuleb erilahendusi nagu karniisid vms?Kas tööde alguseks on aknalauad paigaldatud?

Tervitades R.

Teavita reeglite rikkumisest

Korraldaja vastus: 10.07.2024 08:39

Tere. panen pildi avatud laest.
Erilahendusi ei tule.
Kõik aknad on maast laeni, aga köögi aknal tuleb aknalaud koos köögi tööpinnaga.

Teavita reeglite rikkumisest

Küsimus: private ID79882   18.07.2024 17:55
Tööde mahu arvestamine jääb pakkujale?

Teavita reeglite rikkumisest

Korraldaja vastus: 19.07.2024 08:54

Tere. Jah

Teavita reeglite rikkumisest

Lisa küsimus

Lisa küsimus

Minu pakkumine

€

Reeglid

Pakkumise kirjelduse väli on mõeldud pakkumise detailsemaks lahti kirjutamiseks. Pikema teksti mugavaks sisestamiseks klikkige kasti paremal ülaservas oleval ikoonil.
Pakkumist tehes on keelatud postitada enda kontaktandmeid (nimi, telefon, aadress jne). Me jälgime ja analüüsime pakkumisi, et vältida pettuseid ja reeglite rikkumisi.
Rikkumise puhul kasutajakonto blokeeritakse.

 

Teisi töid samas valdkonnas

Valdkonnas "Siseviimistlustööd" on 24 aktiivset tööd

Korteri remont

Asukoht: Harjumaa, Muraste
Aega jäänud: 2p 4h
Tehtud pakkumisi: 16

Seinte värvimine

Asukoht: Harjumaa, Tallinn
Aega jäänud: 4h 24 min
Tehtud pakkumisi: 7

Vanemad teated:

Vaata kõiki

Sellel veebilehel kasutatakse küpsiseid. Kasutamist jätkates nõustute küpsiste kasutamisega.

Sulge
 
Minu pakkumine
€

Reeglid

Pakkumise kirjelduse väli on mõeldud pakkumise detailsemaks lahti kirjutamiseks. Pikema teksti mugavaks sisestamiseks klikkige kasti paremal ülaservas oleval ikoonil.
Pakkumist tehes on keelatud postitada enda kontaktandmeid (nimi, telefon, aadress jne). Me jälgime ja analüüsime pakkumisi, et vältida pettuseid ja reeglite rikkumisi.
Rikkumise puhul kasutajakonto blokeeritakse.